22 View Terrace Darlington WA 6070
For Sale Offers from $1.4m
Under Offer- Property Type House
- Land area approx 1922.00sqm
- Floor area approx 299sqm
- Region Perth
- Locality Mundaring
- Carports 1
- Ensuite 1
- Garages 2
- Toilets 2
Elevated Family Living with Sweeping City Views
Welcome to 22 View Terrace, a commanding, elevated residence capturing breathtaking valley and city views, delivering premium Hills living just 30 minutes from the Perth CBD.
Built by Webb & Brown-Neaves in 1992, this solid brick-and-tile home sits proudly on a landscaped yet easy-care 1,922sqm block in one of Darlington's most sought-after pockets.
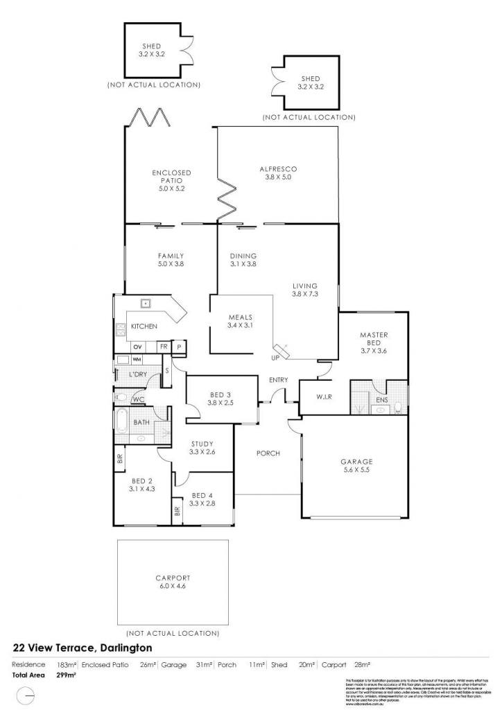
Offering approximately 299sqm under the main roof, this four-bedroom, two-bathroom home features a superbly functional floor plan with multiple living zones and excellent separation of space, ideal for growing families.
From the moment you step inside, the welcoming entry flows into a spacious L-shaped lounge with sliding glass doors opening to the outdoors. The open-plan design continues through to the chef's kitchen, thoughtfully designed for effortless entertaining with high-end appliances and abundant storage, perfectly positioned to stay connected with family and guests. The kitchen overlooks the family room, complete with a slow combustion heater and gas point for year-round comfort.
Sliding doors create a seamless connection to the expansive enclosed patio with raked ceilings and ceiling fan, the ultimate entertaining zone. Complete with a built-in bar, fridge, gas cooktop and plumbing provisions, this versatile space flows via bi-fold doors to the outdoor alfresco and established gardens, where breathtaking valley and city views provide a spectacular backdrop.
The backyard offers established trees, generous lawn for children and pets, room for a future pool, side access and two sheds, plus an additional approximate 750sqm at the rear, presenting exciting potential for a larger workshop, granny flat, garden sanctuary or further outdoor enhancements.
To the right of the entry, the private master suite enjoys peaceful outlooks and features plantation shutters, a walk-in robe and ensuite with shower, vanity and WC. The three remaining bedrooms are positioned in their own wing, two with built-in robes, and are serviced by a family bathroom with bath, shower and separate toilet, plus an activity room/study and a practical laundry with outdoor access.
Freshly painted throughout and enhanced with new flooring to all bedrooms, the home presents light, bright and move-in ready, while still offering scope to personalise over time.
The property also includes an automatic double garage with workshop/storage space, an extra-high single carport and ample additional parking.
Located in a quiet, established neighbourhood surrounded by quality homes, this is elevated Hills living at its finest, peaceful, private and convenient. Within walking distance to good schools, Darlington Oval and local amenities, and just 30 minutes to the Perth CBD, the location perfectly balances lifestyle and accessibility.
Property Facts:
• Webb & Brown-Neaves built in 1992
• 1,922sqm elevated block with breathtaking valley and city views
• 4 bedroom, 2 bathroom residence
• Separate study/activity room
• Multiple living zones including lounge, family and dining
• Open plan kitchen, meals and family area
• Chef's kitchen with Miele double electric oven, Miele integrated dishwasher, stone benchtops, glass splashbacks, large gas hotplates, silent rangehood, pantry and ample storage
• Family room with slow combustion heater and gas point
• Expansive enclosed patio with raked ceilings, bar with gas cooktop, fridge and plumbing provisions, ceiling fan and bi-fold doors
• Outdoor alfresco with sweeping valley and city views
• Private master suite with walk-in robe, plantation shutters and ensuite
• Three additional bedrooms positioned in a separate wing, two with built-in robes
• Family bathroom with bath, shower and separate toilet
• Functional laundry with outdoor access and storage
• Automatic double garage with workshop/storage space
• Extra-high single carport and ample additional parking
• Two sheds (approx. 3.2m x 3.2m each)
• Side access and additional approx. 750sqm rear land
• Established trees, generous lawn and space for a pool
• Freshly painted throughout and new flooring to all bedrooms
• Downlights
• Security doors and screens
• Built-in hallway storage
• 6.6kW solar power system
• Ducted evaporative air-conditioning
• Split system air-conditioning to living area
• Full home water filtration system
• Walking distance to Darlington Oval and village amenities
• 30 minutes to Perth CBD and approx. 15 minutes to the airport
This spacious home is ready for its next chapter, offering the perfect opportunity to embrace the idyllic Perth Hills lifestyle.
For more information or to arrange your viewing, please contact Susanne Broido on 0499 770 237 or Marcelle Clasen on 0408 751 218.
Disclaimer:
This information is provided for general information purposes only and is based on information provided by the Seller and may be subject to change. No warranty or representation is made as to its accuracy and interested parties should place no reliance on it and should make their own independent enquiries.
Email a friend
You must be logged in and have a verified email address to use this feature.
Call Agent
-
Susanne BroidoThe Agency Perth
Call Agent
-
Marcelle ClasenThe Agency Perth

