25 Chepana Street Lake Cathie NSW 2445
For Sale Expressions of Interest
- Property Type House
- Land area approx 546sqm
- Region Mid North Coast
- Locality Port Macquarie-Hastings
- Garages 1
Coastal Haven with Ocean Views, Self-Contained Suite & Steps to the Beach
Phone enquiries - please call 1300 594 794 and quote property ID 38192.
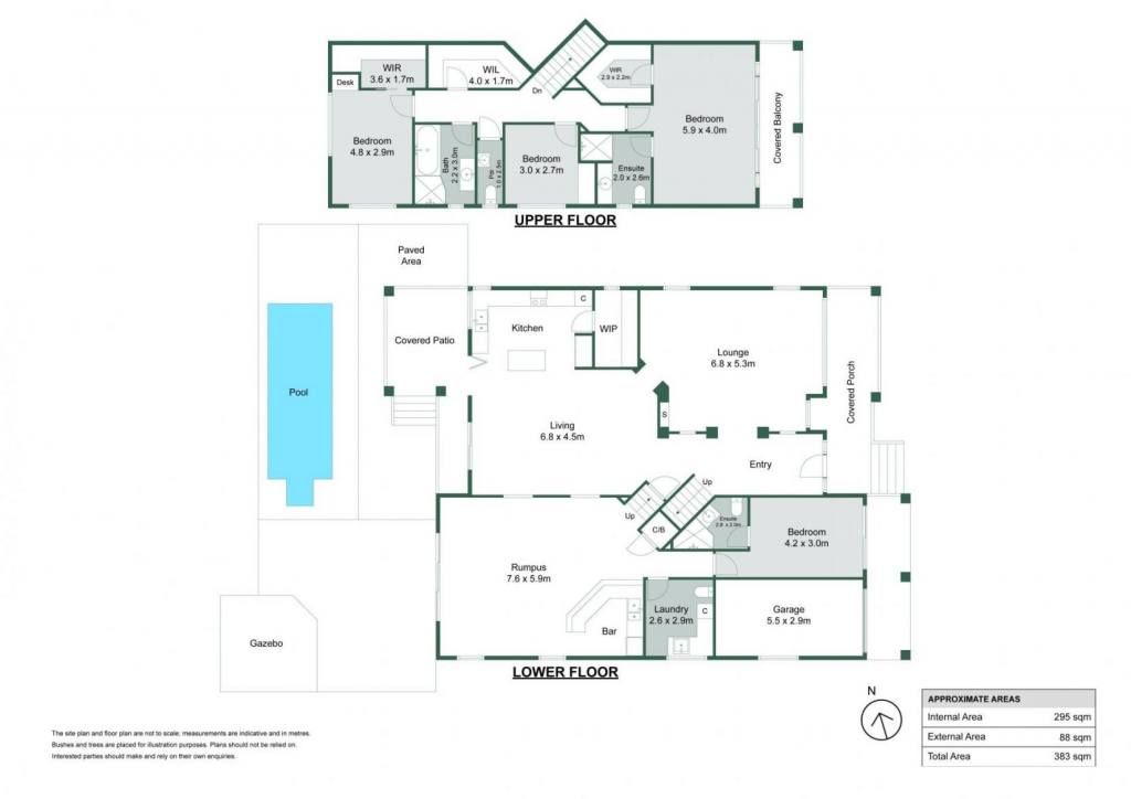
Perfectly positioned just metres from pristine beach access, this oversized four-bedroom home blends contemporary style with effortless family living. Freshly painted and finished with Blackbutt timber and tiled floors, it offers high ceilings, ducted air-conditioning, elegant downlights and ceiling fans throughout.
Three spacious living areas and an open-plan design over 3 levels create exceptional flexibility. The huge master suite features a walk-in robe, ensuite and private balcony capturing ocean views, while the fourth bedroom is a fully self-contained unit with kitchenette, ensuite, living space and its own courtyard—ideal for guests, multigenerational living or Airbnb income.
- Freshly painted, move-in ready coastal home
- Three generous living zones plus open-plan kitchen
- Butlers pantry, walk-in linen closet and laundry with extra toilet
- Master suite with ocean-view balcony and walk-in robe
- Ground Self-contained fourth bedroom with private fenced courtyard and gazebo
- In-ground saltwater pool, low-maintenance gardens and rainwater tank
- High ceilings, ducted air-conditioning, ceiling fans, downlights throughout with high end finishes
- NBN fibre to the house with hard-wired ethernet in every room
Set in one of the suburb’s most desirable, whisper-quiet wide streets, this residence is just a short walk to a shopping complex with cafés, tavern, bakery and eateries, as well as a nearby medical centre. Only 15 minutes from Port Macquarie and surrounded by excellent fishing, surfing, swimming and kayaking spots, it’s the ultimate coastal lifestyle for growing families, investors or those seeking dual-living flexibility.
DISCLAIMER While proudly assisting home owners to sell since 1999, No Agent Property takes every care to verify the accuracy of the details in this advertisement, but the correctness cannot be guaranteed.
Property Features
- Remote Controlled Garage Door
- Solar Panels
- Polished timber floors
- Fully Fenced
- Balcony
- In Ground Pool
- Ducted Vacuum System
- Air Conditioning
- Ducted Heating
- Broadband
- Dishwasher
Email a friend
You must be logged in and have a verified email address to use this feature.
Call Agent
-
No Agent Property - NSWNo Agent Property

