4 Cain Street Quarry Hill VIC 3550
Premium Quarry Hill Address with an Enviable Parkland Outlook
Just moments from the heart of Quarry Hill, this brick home offers an easy-care lifestyle with the rare advantage of opening onto the expansive Quarry Hill Recreation Reserve. It delivers convenience, privacy and an enviable connection to open parkland.
Providing a relaxed, low-maintenance way of living, the home enjoys natural light throughout and sweeping outlooks across the adjoining reserve, you gain direct access to acres of open space, the Leanganook walking track and sporting facilities—perfect for morning strolls, weekend activities or a quiet moment outdoors. The nearby golf course adds an unexpected lifestyle bonus, all just steps from your back boundary.
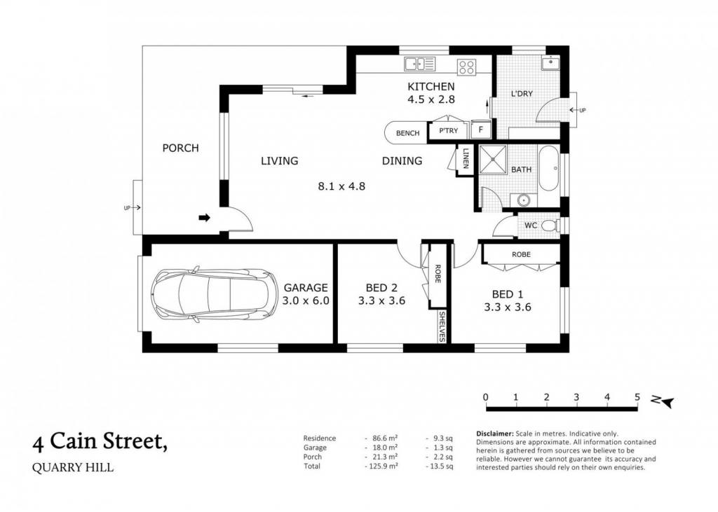
Inside, the practical floorplan includes an inviting open plan living area, two well-sized bedrooms and a central bathroom. The allotment is secure and a rare gem for those who wish to downsize the home, but still want space for a garden, and not feel “hemmed in” . Whether you’re looking for a city-fringe base, a well-located investment, or a home that offers both amenity and tranquillity, this one delivers a rare blend of all three.
Set within one of Bendigo’s most consistently sought-after neighbourhoods, every convenience is close by—local schools, cafés, parks, public transport and the vibrant CBD are all within easy reach. With its combination of lifestyle, location and low-maintenance appeal, this is a superb opportunity to secure a home with a truly special outlook.
Disclaimer: All property measurements and information has been provided as honestly and accurately as possible by McKean McGregor Real Estate Pty Ltd. Some information is relied upon from third parties. Title information and further property details can be obtained from the Vendor Statement. We advise you to carry out your own due diligence to confirm the accuracy of the information provided in this advertisement and obtain professional advice if necessary. McKean McGregor Real Estate Pty Ltd do not accept responsibility or liability for any inaccuracies.
Email a friend
You must be logged in and have a verified email address to use this feature.
Call Agent
-
Amy Harris-ArthurMcKean McGregor

