2D Willcock Street Ardross WA 6153
For Sale Offers from $1.4M
- Property Type Townhouse
- Land area approx 251.00sqm
- Region Perth
- Locality Melville
- Ensuite 2
- Garages 2
- Toilets 3
Where Architecture Meets Attitude
This is not your standard townhouse.
This is a statement. And it's Green Title.
Set in one of Ardross' most tightly held pockets, 2D Willcock Street delivers bold architectural design, clever zoning and an unbeatable lifestyle - all wrapped up in a true lock-and-leave package.
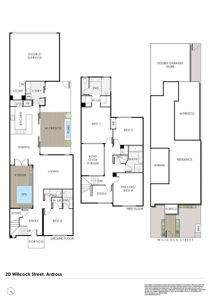
Designed as a 4 bedroom, 3 bathroom home with a dedicated study, the floorplan is refreshingly flexible. One of the bedrooms can easily be repurposed as an additional living space, theatre or retreat - perfect for evolving family needs or downsizers who still want room to spread out.
What really sets this home apart is its indoor atrium with inbuilt spa - a striking centrepiece that brings light, greenery and calm right into the heart of the home. It's private, unexpected and feels more boutique hotel than suburban residence.
High ceilings create an immediate sense of scale, while abundant storage keeps everyday living beautifully streamlined. With master bedrooms on both the ground floor and upper level, the home is ideal for multigenerational living, guests, or simply giving everyone their own space to retreat.
Both the front and rear enclosed courtyards extend the living zones outdoors without adding maintenance - perfect for morning coffees, evening wines or effortless entertaining.
And then there's the location. Step outside and you're moments from cafés, restaurants and the ever-popular Riseley Square Precinct. Walk to the Swan River, nearby parks, or jump on public transport with ease. With quick access to Perth, Fremantle and Garden City Shopping Centre, this is lifestyle-first living done properly.
Why you'll love it
• Green title home with no strata fees
• Architecturally designed with standout street appeal
• Flexible 4x3 + study layout - or convert one bedroom to extra living (as utilised by current owners)
• Indoor atrium with inbuilt spa - a true centrepiece
• Master bedrooms both upstairs and downstairs
• Front and rear private enclosed courtyards
• High ceilings, abundant storage and low-maintenance living
Whether you're downsizing without compromise, a professional craving design and convenience, or a young family wanting space without the upkeep - this home delivers it all, with confidence.
Offers from $1.4M
For further information or to arrange an inspection, contact Charlie Clarke on 0406 626 527
Disclaimer:
This information is provided for general information purposes only and is based on information provided by the Seller and may be subject to change. No warranty or representation is made as to its accuracy and interested parties should place no reliance on it and should make their own independent enquiries.
Email a friend
You must be logged in and have a verified email address to use this feature.
Call Agent
-
Charlie ClarkeThe Agency Perth

