3/5 Chapman Road St James WA 6102
For Sale Offers
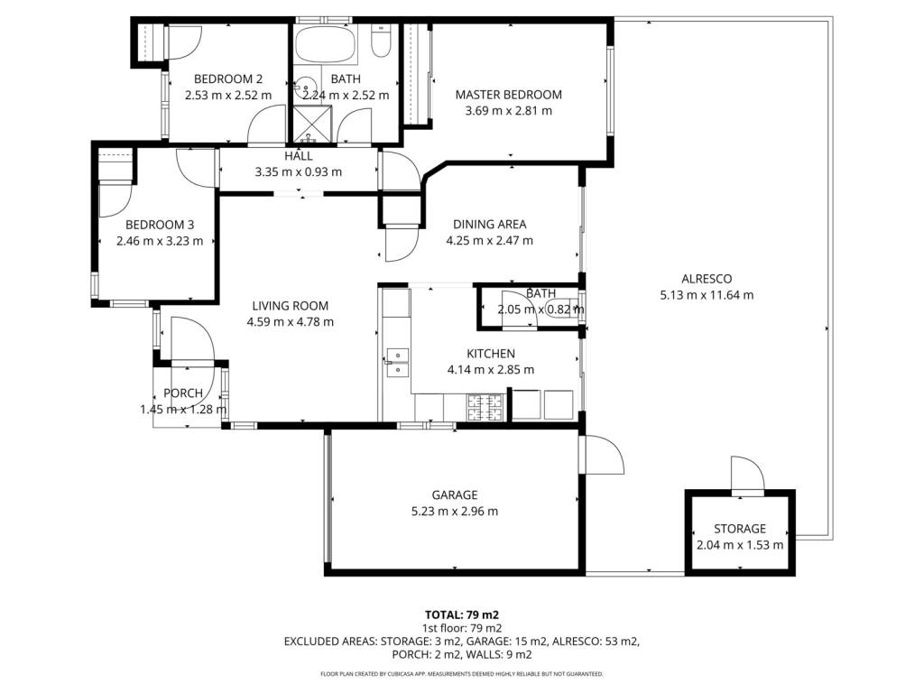
- Property Type House
- Land area approx 211.00sqm
- Floor area approx 81sqm
- Region Perth
- Locality Canning
- Garages 1
Entry-Level Gem – Ideal First Home in a Convenient Central Location
***To be sold via Openn Offers (online transparent bidding) with offers closing Sunday 19th April 2026 @2pm
Calling buyers seeking exceptional value in a centrally positioned villa, just moments from shops, public transport, major arterial roads, and key infrastructure—this opportunity delivers on every front.
The home offers the following features:
* Three well-proportioned bedrooms, including a master with built-in robes and semi-ensuite access
* Generously sized main bathroom with practical layout
* Light-filled formal lounge positioned off the entry
* Separate dining area with direct access to the spacious backyard
* Large tandem garage providing ample parking and storage
* Move-in ready with strong investment appeal, estimated rental return of $700–$750 per week
* Strata fees of $371.82 per quarter
* Convenient proximity to the vibrant Victoria Park café strip
Ideally located within a short drive to Park Centre, Bentley Plaza, and Baileys Hill, and approximately 8km from the Perth CBD, this home combines lifestyle and accessibility.
Act quickly to secure this value-packed opportunity. Contact Charlie Bellow for further information or to arrange your viewing.
Disclaimer:
This information is provided for general information purposes only and is based on information provided by the Seller and may be subject to change. No warranty or representation is made as to its accuracy and interested parties should place no reliance on it and should make their own independent enquiries.
Email a friend
You must be logged in and have a verified email address to use this feature.
Call Agent
-
Charlie BellowThe Agency Perth
Call Agent
-
Davide PalermoThe Agency Perth

