3/6 Irving Place Robin Hill NSW 2795
For Lease
- Property Type Industrial/Warehouse
- Floor area approx 568sqm
- Region Central West
- Locality Bathurst
3/6 Irving Place, Robin Hill
Phone enquiries - please call 1300 594 794 and quote property ID 37479.
**Versatile Industrial Unit in Prime Location**
Now available – enquire today to book your inspection.
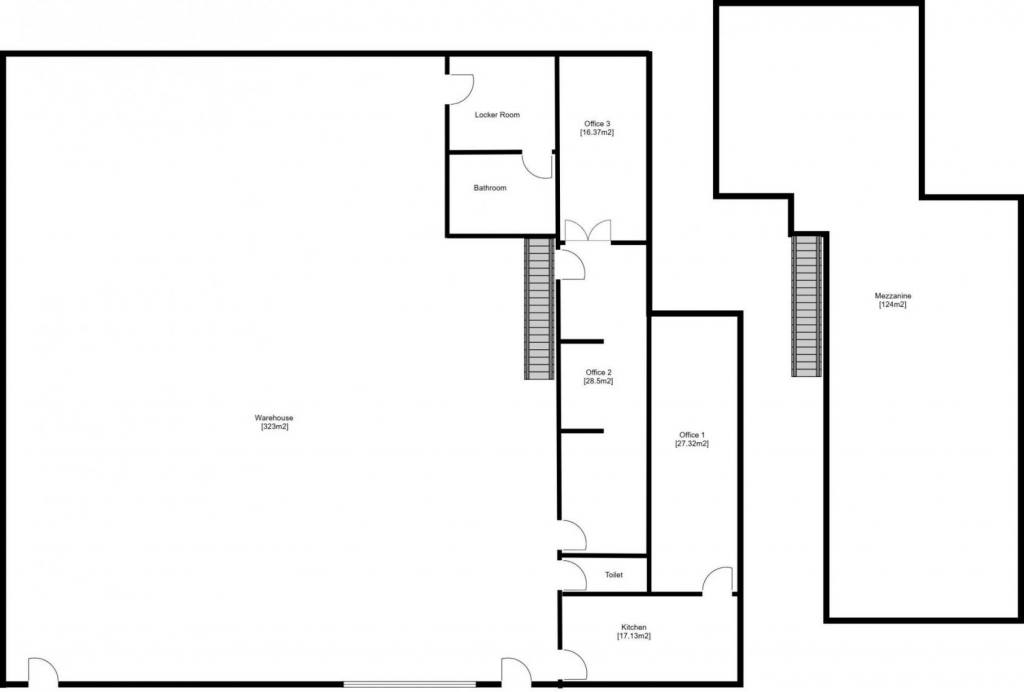
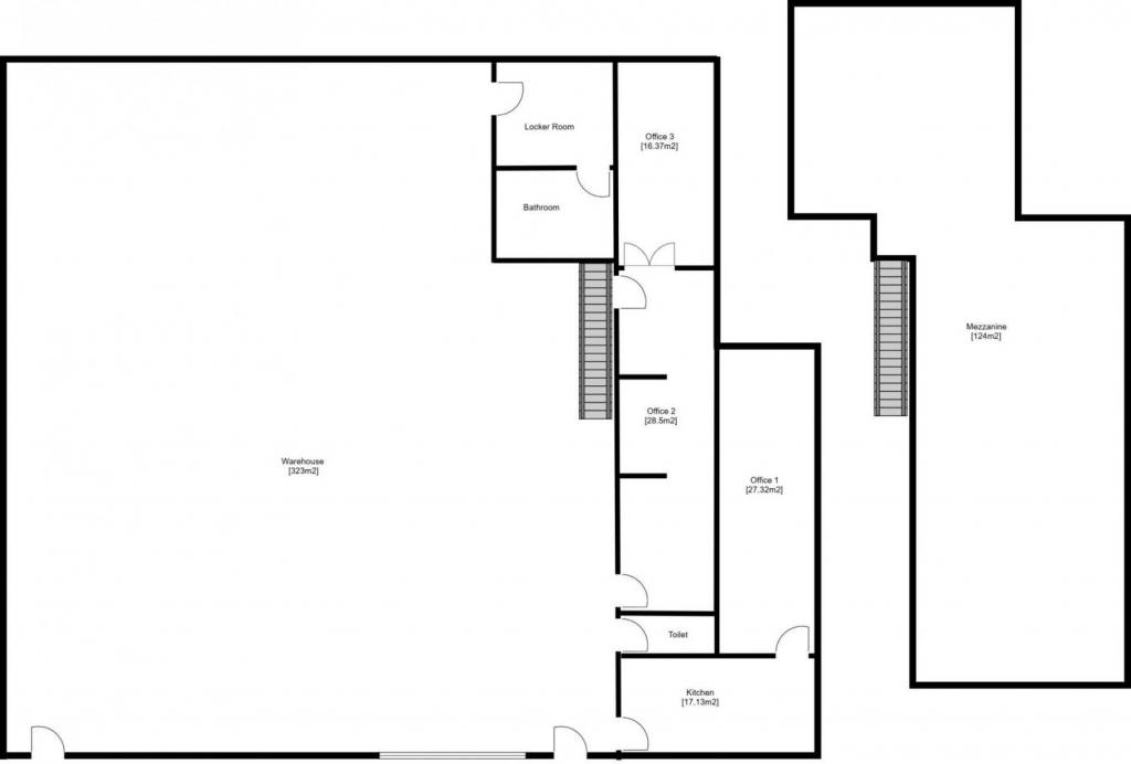
Unit 3, 6 Irving Place offers a well-balanced mix of warehouse, office and mezzanine space in the sought-after Robin Hill industrial precinct, with a total building area of 568m².
**Key Features:**
* 323m² high-clearance warehouse
* 121m² air-conditioned office with amenities
* 124m² mezzanine for extra storage or workspace
* High-clearance roller door with easy truck access
* Secure on-site parking
* Close to major roads and Bathurst CBD
Rent is plus annual outgoings of $13,621.
Enquire now to arrange your inspection.
DISCLAIMER No Agent Business (www.noagentbusiness.com.au) is an Australian For Sale By Owner website operating since 1999. We proudly assist commercial property owners who are looking to sell or lease their own commercial property without paying any real estate commission. While every care has been taken to verify the accuracy of the details in this advertisement, the correctness cannot be guaranteed.
Email a friend
You must be logged in and have a verified email address to use this feature.
Call Agent
-
No Agent Property - NSWNo Agent Property

