31A Carob Tree Place Lesmurdie WA 6076
For Sale Best offer over $2 mill
Under Offer- Property Type House
- Land area approx 2000.00sqm
- Region Perth
- Locality Kalamunda
- Toilets 4
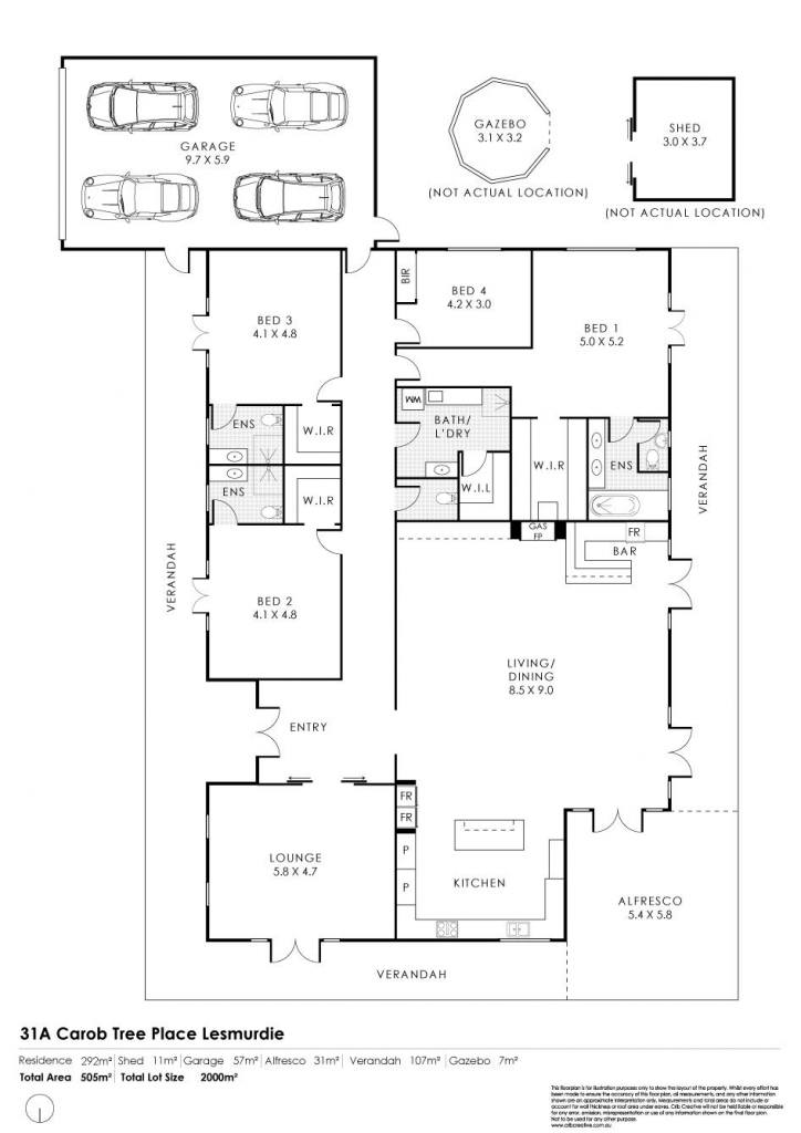
- Garages 4
- Ensuite 3
"A Little Taste Of Heaven" - Just Gorgeous
Tucked away down a long driveway and perfectly positioned adjacent to a peaceful park reserve, this exquisite French Colonial-inspired residence, with its touch of plantation charm, is a true showpiece of timeless elegance. Surrounded by lush, manicured gardens that frame the home beautifully, this stunning property offers a rare blend of individuality, sophistication and serene seclusion-an irresistible haven for the most discerning of buyers.
Stunning French-Colonial Plantation style residence
Secluded down long driveway ensuring privacy & peacefulness
Lush gardens and lawn areas with views over Flora terrace Reserve
4 bedroom 4 bathrooms (3 ensuites) & laundry/bathroom combo
Palatial sized open plan kitchen, dining and family living with bar area
Striking well appointed kitchen with lots of work space & brekky bar
Separate lounge or media room with gorgeous views over the block
All rooms have double French doors leading out onto the verandah
Grand formal entrance with impressive bedroom wing passageway
Large 4 car garage with stacks of extra vehicle parking or shed area
Wide wrap around verandahs with rough cut Indian stone pavers
Unique bamboo flooring throughout living areas & textured dute carpet in bedrooms
Ducted reverse cycle air-conditioning throughout and gas fireplace in family
Electrically heated below ground pool & alfresco entertaining area
Fully fenced and secure - ideal for pets and kids plus electric gated entrance
Situated on a verdant and tranquil 2000 sqm block in blue chip location
30 minutes to Perth - 15 minutes to Airports & striking distance to Schools
For more information or to arrange a viewing, please call
PATRICK HARPER - 0413 440 107
Disclaimer:
This information is provided for general information purposes only and is based on information provided by the Seller and may be subject to change. No warranty or representation is made as to its accuracy and interested parties should place no reliance on it and should make their own independent enquiries.
Property Features
- Shed
- Secure Parking
- Remote Controlled Garage Door
- In Ground Pool
- Outdoor Entertaining Area
- Fully Fenced
- Floorboards
- Dishwasher
- Built In Wardrobes
- Alarm System
Email a friend
You must be logged in and have a verified email address to use this feature.
Call Agent
-
Patrick HarperThe Agency Perth

