32 Marvell Avenue Spearwood WA 6163
For Sale OFFERS OVER $1,380,000
- Property Type House
- Land area approx 717.00sqm
- Floor area approx 190sqm
- Region Perth
- Locality Cockburn
- Garages 2
Refined Coastal Living on an Elevated 717sqm parcel of land
We are delighted to present 32 Marvell Avenue, Spearwood, This beautifully refreshed two storey residence that effortlessly blends warmth, space and modern coastal country inspired design.
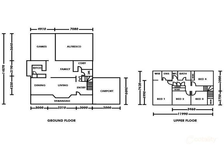
Originally constructed in 1989 and thoughtfully updated, this expansive four-bedroom, two-bathroom home is set on an elevated 717sqm parcel, delivering a rare combination of charm, functionality and lifestyle. Perfectly positioned moments from local schools, parklands and everyday amenities, with the coastline just a short drive away, this is a home that offers both convenience and a relaxed coastal connection.
From the outset, the property creates a sense of privacy and arrival, framed by established greenery and a long driveway offering ample parking along with convenient rear access.
Step inside to interiors that feel both inviting and Hampton's inspired.
The main living areas are anchored by quality wood look tiling, bringing warmth and cohesion throughout. The front lounge is bathed in natural light, capturing peaceful neighbourhood outlooks, while the adjoining expansive study zone, is complete with timber benchtops and provides a flexible and functional space for working from home, study or quiet retreat.
At the heart of the home, a beautifully appointed kitchen and dining area showcases an understated yet refined aesthetic. Thoughtfully designed with teak benchtops along with generous overhead and under bench storage and a well configured pantry, this space balances everyday practicality with timeless style.
A separate theatre room further enhances the home's versatility, complete with block out shutters and a cosy ambience, ideal for movie nights or relaxed evenings in. This theatre games room opens upon the large alfresco area perfect for entertaining guest and leading to the large expansive lawn area for children to run and play with. This home represents endless potential to further enhance, entertain or simply enjoy the space on offer and is a rare find in this increasingly sought after pocket.
Properties with this land size and high on the hill positioning are in high demand and rarely offered. Buyers are strongly encouraged to act swiftly, as opportunities like this do not last, all offers will be presented as received.
For more information or to arrange your viewing, please contact exclusive selling agent Rebecca Saraceni from The Agency on 0493 379 359.
FEATURES YOU WILL LOVE
• Elevated 717sqm landholding
• Spacious four-bedroom, two-bathroom design
• Multiple living zones including theatre room
• Dedicated study or work from home space
• Warm coastal country inspired interiors
• Quality kitchen with teak benchtops and endless storage.
• Established gardens offering privacy and street appeal
• Ample parking with rear access
THE LOCATION
• Positioned in a well-connected and family friendly pocket of Spearwood
• Ocean glimpses from the second story
• Close Proximity to Newton Primary School, St Jerome's
• Moments from local shops, parklands and essential amenities
• Just a short drive to the vibrant coastal precinct of Port Coogee
• Easy access to Fremantle, buzzing café culture, boutique bars and restaurants
• A blend of coastal living and urban convenience in a highly sought after location
RATES AND LOCAL INFORMATION
Zoning: R20
Disclaimer:
This information is provided for general information purposes only and is based on information provided by the Seller and may be subject to change. No warranty or representation is made as to its accuracy and interested parties should place no reliance on it and should make their own independent enquiries.
Email a friend
You must be logged in and have a verified email address to use this feature.
Call Agent
-
Rebecca SaraceniThe Agency Perth
Call Agent
-
Jim MoncrieffThe Agency Perth

