37 Clarke Way Bassendean WA 6054
For Sale Expressions of Interest
Under Offer- Property Type House
- Land area approx 728.00sqm
- Region Perth
- Locality Bassendean
- Carports 1
- Garages 2
- Toilets 1
Big Opportunity Knocking
To be sold by "Expressions Of Interest" Offers close 16/3/2026 (unless sold prior)
Situated on a 728sqm block and adjacent to Abell Reserve is this offering ready for the investor or nester to transform this home into a work of art. Just a casual stroll to the Swan River, local wetlands and Parks, this property would be a sound investment for the astute buyer. Do not delay and call to inspect.
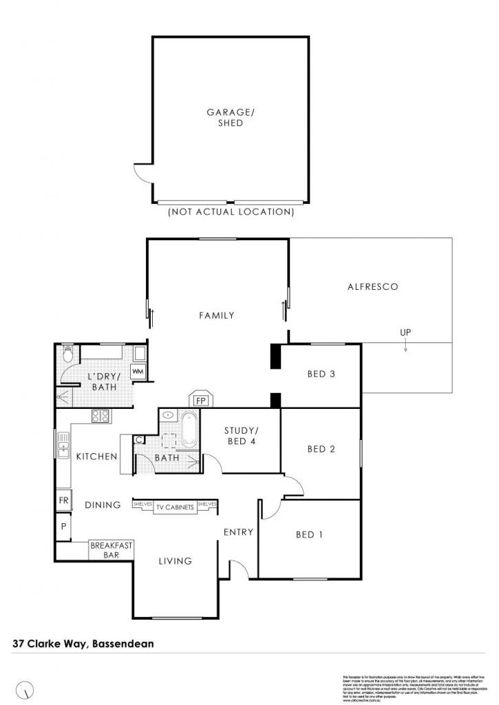
3 bedrooms 1 bathroom plus office
Partially renovated to a modest degree
Large family room wood fire heater
Concrete and timber-like flooring
Various split system air-con units
House has recently been rewired throughout
Side access to a double lockup shed
Situated on a 728 sqm block adjacent to Park
PLEASE NOTE: THIS PROPERTY IS TO BE SOLD ON AN "AS IS" BASIS.
For more information or to arrange a viewing, please call
PATRICK HARPER - 0413 440 107
Disclaimer:
This information is provided for general information purposes only and is based on information provided by the Seller and may be subject to change. No warranty or representation is made as to its accuracy and interested parties should place no reliance on it and should make their own independent enquiries.
Email a friend
You must be logged in and have a verified email address to use this feature.
Call Agent
-
Patrick HarperThe Agency Perth

