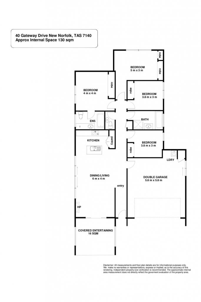
40 Gateway Drive New Norfolk TAS 7140
For Sale Offers over $755,000
- Property Type House
- Land area approx 1085sqm
- Floor area approx 130sqm
- Region Tasmania
- Locality Derwent Valley
- Garages 2
- Ensuite 1
- Toilets 2
Spacious Family Living - Nothing Left to Do
Discover this beautifully built, spacious four-bedroom home, perfectly positioned in a sought-after new homes area. Designed for modern living, the property offers a generous open-plan layout filled with natural light and complemented by peaceful rural views.
Step outside to a fully fenced, level yard featuring immaculately maintained gardens, ideal for families, pets, or those who love outdoor living. The home also boasts a fantastic entertaining area, perfect for hosting gatherings year-round.
Complete with a double garage with electric door and ample off-street parking, convenience is assured. Located just moments from all essential services, this property truly offers the best of comfort and lifestyle.
Move straight in and enjoy everything this magnificent home has to offer, there's simply nothing left to do.
Roberts Real Estate have obtained all information in this document from sources considered to be reliable; however, we cannot guarantee its accuracy.
Prospective purchasers are advised to carry out their own investigations. All measurements are approximate.
Email a friend
You must be logged in and have a verified email address to use this feature.
Call Agent
-
Paul BelcherRoberts Real Estate Glenorchy

