50 Benian Road The Palms QLD 4570
Sold
- Property Type Acreage/Semi-rural
- Land area approx 7026sqm
- Region Wide Bay Burnett
- Locality Gympie
- Toilets 2
- Ensuite 1
- Carports 2
- Garages 7
A Private, Breezy Rural Escape with Outstanding Infrastructure
Positioned on a generous 7,026sqm corner allotment, this elevated property offers the perfect balance of space, privacy, and functionality. Enjoy year-round breezes, sweeping views, and dual driveway access, ideal for families, tradies, or those with caravans and boats. With beautifully maintained grounds and well-thought-out infrastructure, this is acreage living at its most practical and peaceful.
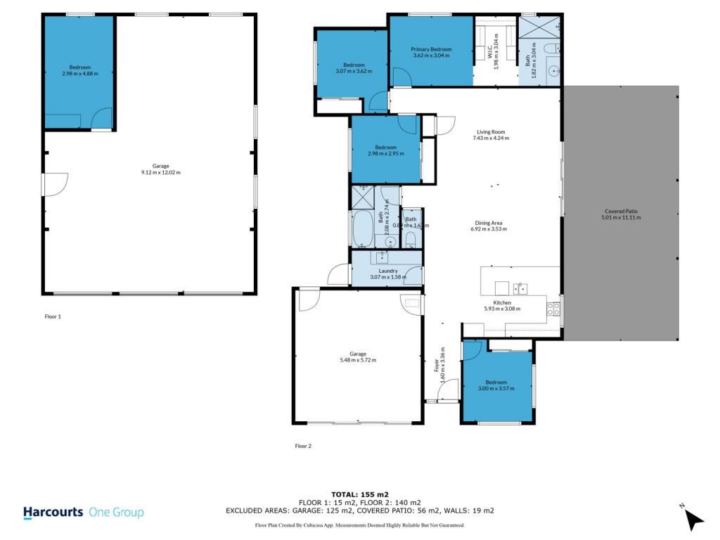
The solid, single-level home features four spacious bedrooms, all with air conditioning, ceiling fans, and built-in wardrobes. The layout includes two bathrooms, a large open-plan kitchen, dining, and lounge area with split-system air conditioning, and a built-in garage currently used as a fully air-conditioned multipurpose room. Tiled throughout, the home is both stylish and easy to maintain, with a large internal laundry completing the floorplan.
Outdoor living is a highlight, with a huge covered patio perfect for entertaining or simply unwinding in the quiet surrounds. The property also features a high-clearance 6x6m caravan port, a 12x9m powered shed with a built-in room, and a 40ft shipping container fully equipped with power and lights - ideal for secure storage or creative repurposing.
With a focus on sustainability and low running costs, the home includes a massive 19kW solar system and two 22,500L water tanks. Whether you're looking to work from home, run a business, or simply enjoy the space, this property is move-in ready with infrastructure rarely found in one package.
Located in the peaceful community of The Palms, just minutes from local amenities and a short drive to Gympie, this exceptional property delivers lifestyle, comfort, and value in one complete offering. 50 Benian Road is a must-see for buyers seeking quality acreage with nothing left to do.
To obtain further information, Contact Michael Chalmers on 0478 141 951.
Inspection Disclaimer:
This property is not a public place and is someone's home, investment, or private property. Harcourts One Group will and has the right to properly qualify all potential purchasers who apply for an inspection and reserve all rights to refuse said inspection without explanation. Please note that under no circumstances, is anyone authorized to enter the property without the supervision of a Harcourts One Group representative.
Information Disclaimer:
Although Harcourts One Group has provided all information related to this property to the best of our knowledge and resources, we shall not be held accountable or responsible for its accuracy. Harcourts One Group urges all buyers to conduct their own independent research and consult their own professionals to conduct due diligence before purchasing.
Property Features
- Air Conditioning
- Built In Wardrobes
- Dishwasher
- Remote Controlled Garage Door
- Shed
- Fully Fenced
- Solar Panels
Email a friend
You must be logged in and have a verified email address to use this feature.
Call Agent
-
Michael ChalmersHarcourts One Group

