50B Blaxland Way Padbury WA 6025
For Sale Offers From $1.2m
- Property Type House
- Land area approx 342.00sqm
- Floor area approx 166sqm
- Region Perth
- Locality Joondalup
- Garages 2
Simply Relax and Put Your Feet Up!
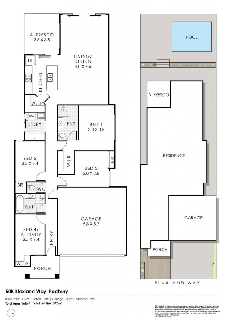
Headlined by an enticing below-ground swimming pool at the rear, this flexible 4 bedroom 2 bathroom Green Titled single-level home is all about relaxed low-maintenance “lock-up-and-leave” living, where both functionality and practicality come to the fore.
Beyond a delightful entry deck lies a front fourth bedroom – or potential activity room for the kids – with a walk-in storage nook. The main family bathroom is stylish, playing host to a shower, a separate bathtub, a powder vanity and under-bench storage.
A separate second toilet can also be found within this part of the house, alongside second and third bedrooms with respective mirrored-built-in and walk-in wardrobes. A spacious and central master suite features a large walk-in robe of its own, as well as a generous ensuite with a toilet, vanity, under-bench storage and a shower.
A full-height double linen press graces the laundry that extends out to the side of the property for drying. The open-plan kitchen, dining and family area is light, bright and very comfortable in its proportions, comprising of feature pendant lights, ample power points, sparkling stone bench tops, double sinks, subway-tile splashbacks, a corner walk-in pantry and quality 900mm-wide stainless-steel range-hood, five-burner gas-cooktop and Bellissimo Technika under-bench-oven appliances.
Two sets of double sliding doors reveal seamless outdoor access to the rear of the property and a fantastic under-cover alfresco-entertaining area, benefitting from splendid elevated tree-lined views in the distance. It also overlooks the sunken blue pool and its abundance of neighbouring space for everybody to laze around under the sun, in total peace and quiet.
This desirable looped locale is conveniently positioned despite the seclusion, with a host of sprawling neighbourhood parklands only walking distance away, as are several playgrounds for the kids to let their imaginations run wild on. Bambara Primary School and multiple bus stops can also be found nearby, along with restaurants and the popular Kilo Bakery & Coffee store at Forrest Plaza – and the excellent Alex Junior Café and the All Foods Market IGA at Padbury Shopping Centre.
Just a stone's throw away are other local primary schools (including Padbury Catholic Primary School) and the stunning Hepburn Heights Conservation Area, along with the likes of the freeway, the Greenwood and Whitfords Train Stations, Duncraig Senior High School, Sacred Heart College, St Mark's Anglican Community School, two daycare centres, more coffee haunts, Westfield Whitford City Shopping Centre, Craigie Leisure Centre and Open Space bushland, Hillarys Boat Harbour, Hillarys Beach Club, glorious beaches and much, much more.
This is the oasis you didn't expect. The living is easy here, in this private poolside paradise!
Other features include, but are not limited to;
- Quality timber-look floor tiles
- Carpeted bedrooms
- Side drying courtyard
- Solar-power panels
- Ducted reverse-cycle air-conditioning with touchpad zoning controls
- Feature down lights
-- Instantaneous gas hot-water system
- Front and rear reticulation
- Low-maintenance gardens and front-yard-lawn area
- Large remote-controlled double lock-up garage with internal shopper's entry and roller-door access to the side/rear of the property
- Easy-care 342sqm (approx.) block
Cool, calm and collected, this gem of a home is the perfect flexible entertainer for those who appreciate everyday family life, without the fuss!
For further information, please contact Jarrod O'Neil on 0411 103 617.
Disclaimer:
This information is provided for general information purposes only and is based on information provided by the Seller and may be subject to change. No warranty or representation is made as to its accuracy and interested parties should place no reliance on it and should make their own independent enquiries.
Email a friend
You must be logged in and have a verified email address to use this feature.
Call Agent
-
Jarrod O'NeilThe Agency Perth

