6 Charles Riley Road North Beach WA 6020
In a Word: Composed
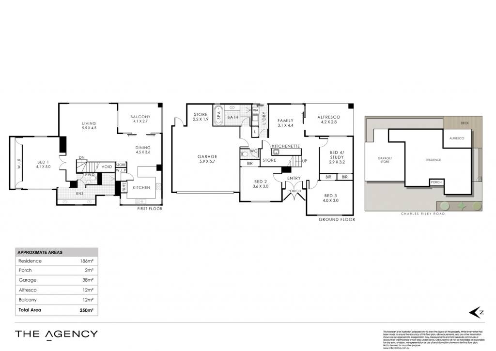
Positioned to take full advantage of its west-facing aspect, this dual-level residence captures the warmth of the afternoon light and the relaxed coastal atmosphere North Beach is known for. Designed for flexibility and comfort, it offers multiple living zones, quality finishes and a thoughtful layout ideal for families or professionals seeking space to entertain and unwind.
Upstairs, polished timber floors set the tone for the main open-plan living, dining and kitchen area, framed by large windows and sliding doors that flow onto a covered balcony - perfect for sunset dinners and evening drinks. The kitchen features stone benchtops, gas cooking and generous storage, balancing function with clean contemporary appeal.
The master suite completes the upper level, with a large walk-in robe and a well-appointed ensuite with twin vanities.
Downstairs, a second living area connects seamlessly to the alfresco, offering an additional space for family living or guests. Three bedrooms with built-in robes, a kitchenette and full bathroom make the lower level entirely self-contained if desired, while a double garage with internal access ensures everyday convenience.
Key Features:
- Four bedrooms, two bathrooms plus powder room
- Open-plan living, dining and kitchen with timber floors and west-facing balcony
- Downstairs family room, kitchenette and full bathroom
- Large WIR and his/hers ensuite
- Ducted reverse-cycle air conditioning, gas bayonets and security shutters
- Smart locks, intercom/alarm system and double garage with internal access
Why you'll stay:
The evening light, the elevated living space that opens to the balcony, the sense of privacy across two levels and the effortless comfort of smart features, climate control and coastal proximity, all combine to deliver an address that feels both refined and relaxed.
Rental Estimate: approx $1,450 pw
Year Built: 2009
Council Rates: $2,804.34
Water Rates: approx $1,690.79 pa
Disclaimer:
This information is provided for general information purposes only and is based on information provided by the Seller and may be subject to change. No warranty or representation is made as to its accuracy and interested parties should place no reliance on it and should make their own independent enquiries.
Email a friend
You must be logged in and have a verified email address to use this feature.
Call Agent
-
Corey AdamsonThe Agency Perth
Call Agent
-
Paul TonichThe Agency Perth

