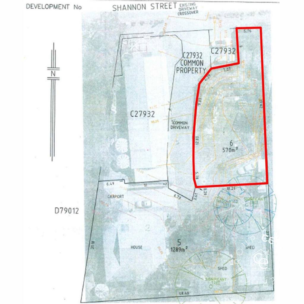
6 Shannon Street Birdwood SA 5234
For Sale $245,000
- Property Type Residential Block
- Land area approx 570.00sqm
- Region Adelaide Hills, Fleurieu and Kangaroo Island
- Locality Adelaide Hills
Rare and unique
Newly created and distinctively individual vacant title.
PROPERTY HIGHLIGHTS:
• 570m² building allotment
• Bitumen driveway
• Levelled homesite ready for your plans
• Raised parking area
• Fencing and partial landscaping in place
• SA Water connected and power available
Finding a place to build a new home in a township as pretty and desirable as Birdwood, where new housing estates are non-existent, is near impossible.
Here, this recently created allotment provides that rare opportunity to bring your own plans and ideas to establish a new build in such a beautiful town.
Its set back from the main street location gives it a commanding street presence yet still maintains its country feel with rural views.
Is this your chance to embrace living in a hills town?
Call NOW on 0488 972 888 for more information or to arrange a private inspection.
Country Estates Realty Pty Ltd trading as CE Property Group RLA100925
Disclaimer:
Disclaimer: We the agent, make no guarantee the information is without mere errors and further that the purchaser ought to make their own enquiries and seek professional advice regarding the purchase. We the agent, are not the source of the information and we expressly disclaim any belief in the truth or falsity of the information. However, much care is taken by the vendor and our company to reflect the details of this property in a true and correct manner. Please note: neither the vendor nor our company accept any responsibility or liability for any omissions and/or errors. We advise that if you are intending to purchase this property, that you make every necessary independent enquiry, inspection and property searches. This brochure and floorplan, if supplied, are to be used as a guide only.
Email a friend
You must be logged in and have a verified email address to use this feature.
Call Agent
-
Mark WatkinsCE Property Group
Call Agent
-
Ali BurdettCE Property Group

