"Mornington Heights" 634 Splitters Creek Road Splitters Creek NSW 2640
For Sale Expressions of Interest closing 19/12 at 5pm
- Property Type Mixed Farming
- Land area approx 100ac
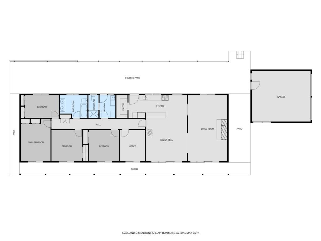
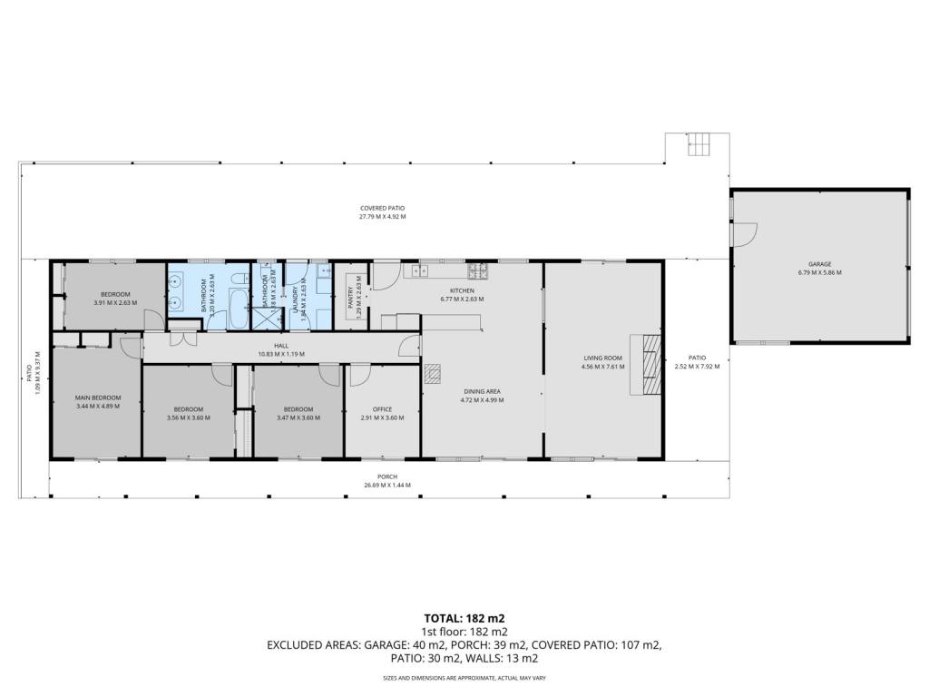
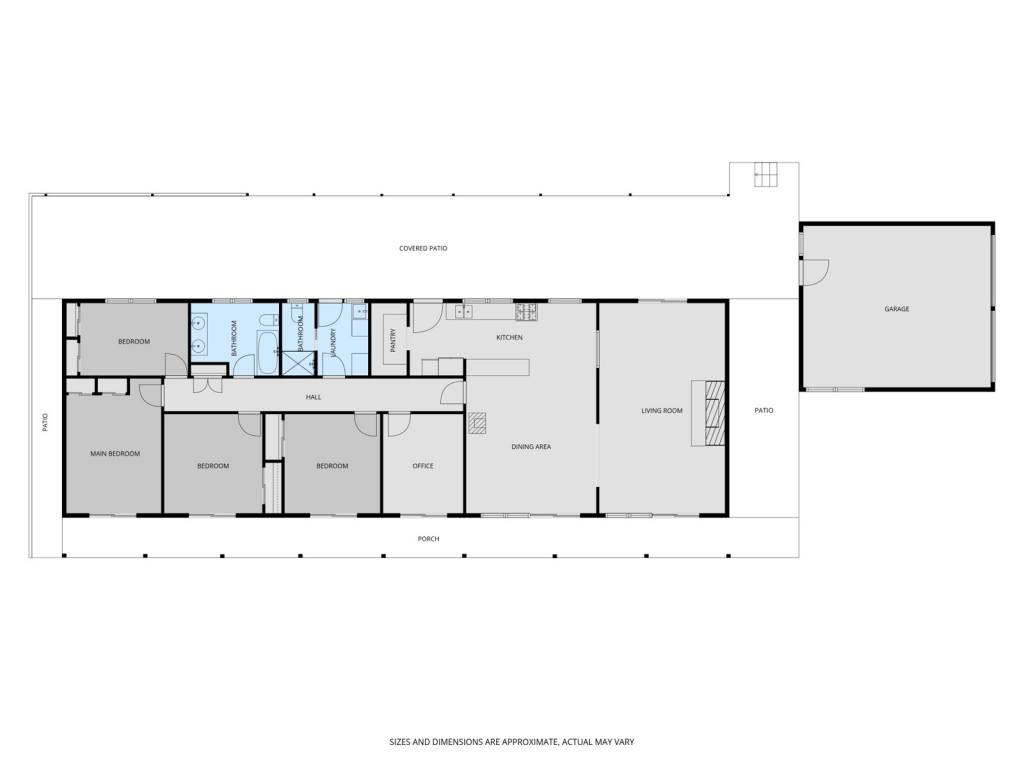
- Floor area approx 176sqm
- Region Murray
- Locality Albury
- Ensuite 1
- Garages 2
- Toilets 2
- Uncovered Carspaces 2
Idyllic Rural retreat just minutes from Albury CBD
Land size:
100 acres
Location:
“Morningside Heights” is situated in the prominent Splitters Creek area, A highly regarded rural lifestyle location on the edge of Albury City and just a 10-minute drive to both primary and secondary schooling, sporting complex’s, shopping and dining. 20-minute drive to Albury airport, 3.5 hrs from Melbourne CBD, 5.5 hours from Sydney CBD via Hume freeway.
Residence:
“Mornington Heights” home presents as a genuine family residence of brick veneer construction. Featuring bull nose verandahs, double lock up garage and set in a rural landscape with vast grass areas and low maintenance gardens. Inside the home it offers 2 living areas for comfort, space and relaxation. Modern timber kitchen with quality appliances and walk in pantry. 4 bedrooms with built in robes plus study/5th bedroom. 2 bathrooms, individual split system air conditioner units in each living area and bedrooms along with a ducted evaporative cooling system throughout the home and 2 slow combustion wood fires.
Water:
“Mornington Heights” home is supplied by large rainwater catchment, gardens and surrounds supplied by reliable catchment dam and reticulated via gravity to troughs and water points around the home.
Land:
“Mornington Heights” consists of creek flats, open grazing and hill grazing with native timber providing much needed shelter to stock. “Mornington Heights” would lend its hand to multiple rural pursuits although cattle grazing would be its most popular option.
Agents Remarks:
“Mornington Heights” is a rare and exciting opportunity for an astute buyer to buy into Albury’s premier lifestyle area. It is not often that properties of this size and calibre come available to the market, we highly suggest an inspection to see the true potential.
Property Features
- Air Conditioning
- Broadband
- Built In Wardrobes
- Ducted Cooling
- Fully Fenced
- Grey Water System
- Open Fireplace
- Remote Controlled Garage Door
- Rumpus Room
- Secure Parking
- Shed
- Water Tank
More Mixed Farming properties
Email a friend
You must be logged in and have a verified email address to use this feature.
Call Agent
-
Bart HanrahanBUR Real Estate
Call Agent
-
Susan HanrahanBUR Real Estate

