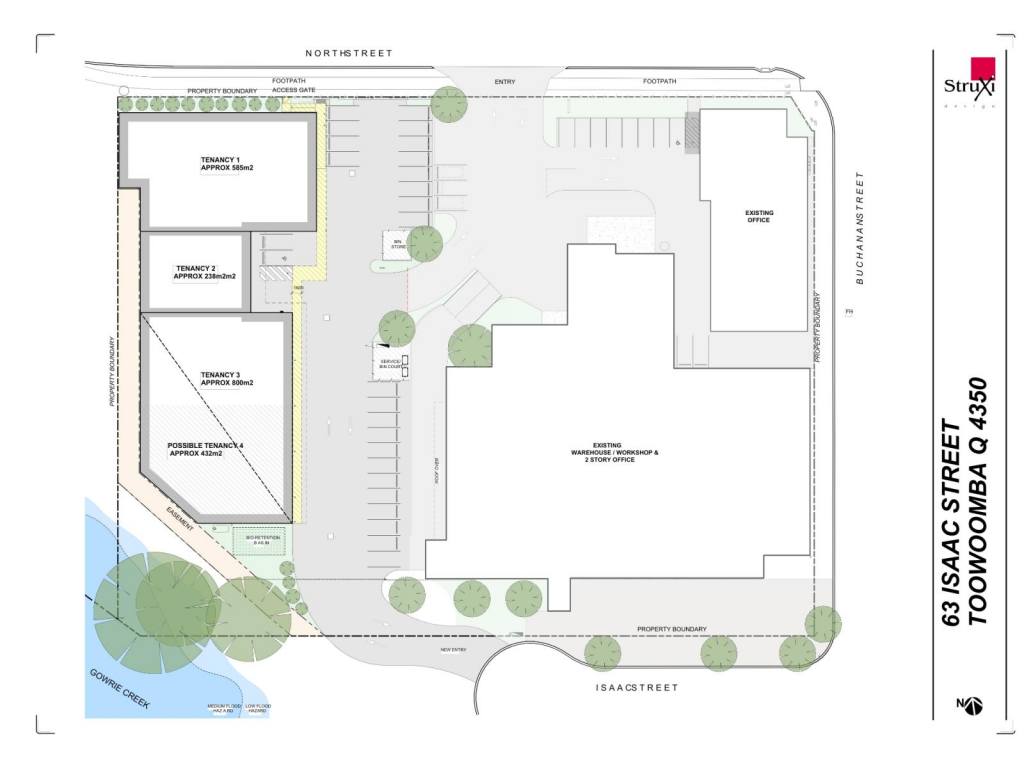
Tenancy 4/208 North Street North Toowoomba QLD 4350
For Lease $77,875 Per Annum + GST + Outgoings
28
- Property Type Industrial/Warehouse
- Land area approx 445sqm
- Floor area approx 445sqm
- Region Darling Downs and South West
- Locality Toowoomba
445 sqm. Brand New Industrial Warehouse - North Toowoomba
Currently under construction and due to be finished in Q4 2025!
Ready to start leasing now
Tenancy 4 features include;
- 445 sqm. brand-new, combined tilt slab/metal clad warehouse
- Low-Impact Industry zoning
- High-clearance roller doors plus separate glass sliding personal access doors
- Internal kitchenette and lunchroom
- Male, female, and accessible (disabled) amenities
- 28 shared on-site car parks
- Ample space for truck access
- Excellent signage potential with high exposure to busy North Street
To arrange an onsite inspection or learn more, contact Alice Ridgway on 0488 085 880.
×
×
Email a friend
You must be logged in and have a verified email address to use this feature.
×
×
Call Agent
-
Alice RidgwayQLD Hot Property

