1895 Gill Street Parkerville WA 6081
For Sale Offers over $1.25m
Under OfferA Nature Lover’s Dream — Where Country Charm Meets Hills Magic
1895 Gill Street, Parkerville
A Nature Lover's Dream — Where Country Charm Meets Hills Magic
Hidden away at the end of a long, private 150m driveway, this enchanting 5-acre property feels like a world of its own — a peaceful sanctuary where the beauty of the natural bush blends seamlessly with open pasture, cottage gardens, and the character of true country living.
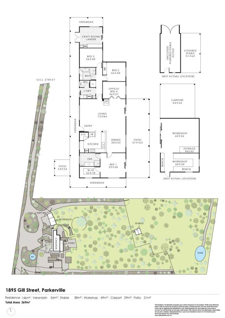
Set in an elevated position overlooking the treetops, this is a property that feels instantly welcoming. The home itself, a 3-bedroom plus study (or 4th bedroom) residence, has been lovingly cared for and thoughtfully updated over time, preserving its warmth and charm while offering modern comfort.
Inside, cathedral ceilings create a sense of space and light, while new cork flooring brings a natural warmth underfoot. The country-style kitchen is the heart of the home — inviting, practical, and perfectly positioned to take in garden views while you cook, bake, or gather with family.
The layout offers three comfortable bedrooms, a dedicated study or fourth bedroom, and a craft/larder room that adds flexibility for hobbies, storage, or creative pursuits. With two bathrooms, daily life here flows easily — ideal for families or those who enjoy hosting guests.
Step outside, and the magic truly unfolds. Wander through beautiful established cottage gardens & the many variety of fruit tress, follow the creek line that meanders through the property, or pause by the small dam and listen to the birdsong echo through the trees. The original homestead stable still stands proudly near the pasture — a nostalgic nod to the property's heritage and its past life as a small horse haven.
For those who love to work with their hands, there's an impressive three-phase powered workshop with mezzanine storage, large enough to accommodate machinery, projects, or even a serious home business setup. The property is fully fenced, offering peace of mind for pets or livestock, and there's ample open space for horses, veggie gardens, or simply soaking up the serenity.
This is a home that celebrates space, nature, and authenticity. Every corner tells a story — from the whispering gums to the tranquil dam, from the rustic stable to the sun-drenched patio where you can sit with a cuppa and watch the seasons change.
Perfect for nature lovers, creatives, or anyone chasing a slower, more meaningful way of life, 1895 Gill Street is not just a home — it's a retreat, a lifestyle, and a chance to reconnect with what matters most.
1895 Gill Street, Parkerville
3 Bedrooms + Study (or 4th Bedroom)
2 Bathrooms
In ceiling storage with built in ladder
5 Acres — Mix of Pasture & Natural Bushland
Huge 3-Phase Powered Workshop
Creek, Small Dam & Original Homestead Stable with power
Cottage Gardens | Secluded 150m Driveway | Fully Fenced
Bore & Mains water
Established fruit trees
Water to back paddocks
Roof sprinkler system
A rare opportunity to own a truly special piece of the Perth Hills.
Contact us today to arrange your private viewing and experience the peace and beauty of Parkerville living.
Cindy King
0411 208 202
Alistair Caffel
0402 785 877
Cindyandalistair@theagency.com.au
Disclaimer:
This information is provided for general information purposes only and is based on information provided by the Seller and may be subject to change. No warranty or representation is made as to its accuracy and interested parties should place no reliance on it and should make their own independent enquiries.
Property Features
- Evaporative Cooling
Email a friend
You must be logged in and have a verified email address to use this feature.
Call Agent
-
Cindy King & Alistair CaffelThe Agency Perth

