20 Jamieson Street Mareeba QLD 4880
Sold $550,000
- Property Type House
- Land area approx 802sqm
- Region Far North Queensland and Torres Strait
- Locality Mareeba
- Toilets 2
- Garages 1
PEACEFUL LIVING WITH EVERYDAY CONVENIENCE
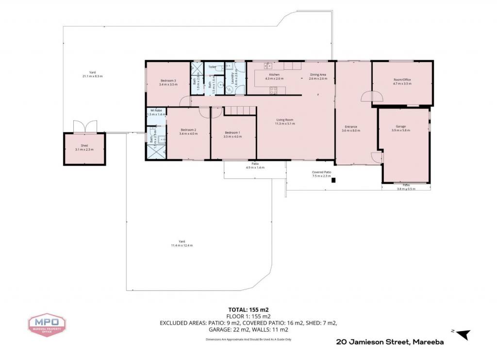
Set in a quiet neighbourhood about five minutes from the local CBD, this inviting four-bedroom, two-bathroom masonry block home combines modern comfort with relaxed living. Step inside to discover an open-plan layout that flows effortlessly from the spacious living area to the well-appointed u-shaped kitchen, featuring electric cooktop and under bench oven, rangehood, double stainless-steel sink, and ample storage for the home chef.
Fully tiled throughout, the home offers easy maintenance and a cool, fresh feel underfoot. All the rooms are generously sized, perfect for growing families or those who simply enjoy extra space.
Security screens and doors provide peace of mind, allowing refreshing breezes to flow freely through the home. Outside, a handy garden shed adds practicality to the property, ideal for storing tools or weekend projects.
Property Features:
• Front, tiled patio entryway
• Cemented area at the front of the home to side boundary provides ample off-street visitor parking
• Solid masonry block construction (with split block feature)
• 4 bedrooms + 2 bathrooms & generous room sizes all round
• Open plan design including a breezeway with security screening which separates the fourth bedroom from the main part of the home
• Main bedroom with air-conditioning, WIR and ensuite
• Built-ins in one bedroom, cavity shelving in room off the breezeway
• U-shaped kitchen with electric cook top and under bench oven, rangehood, stainless steel sink, double pantry storage cupboard, (dishwasher cavity)
• Family bathroom with shower & double powder room outside
• Louvred hallway linen & storage cupboards
• Galley style laundry with tub & wall shelving
• Ceiling fans throughout
• Tiled floors for easy maintenance
• Security screens/doors
• Electric hot water system (250L)
• Garden shed (3m x 3m)
• Established gardens
• Quiet neighbourhood
• 5 minutes' drive from the local CBD
With its thoughtful design, quiet surrounds, and proximity to town conveniences, this home offers the perfect blend of lifestyle and location. Inspect now!
From all of us at Mareeba Property Office, we wish you every success with your property search. For more information or to arrange an inspection, please contact our friendly team today.
Disclaimer: While we have taken all care in preparing this advertisement and believe the information to be correct, we accept no liability for errors or omissions. Buyers are encouraged to undertake their own due diligence.
Property Features
- Outdoor Entertaining Area
- Fully Fenced
- Broadband
- Ceiling fans
- Built In Wardrobes
- Air Conditioning
Email a friend
You must be logged in and have a verified email address to use this feature.
Call Agent
-
John FalvoMareeba Property Office
Call Agent
-
Damon FalvoMareeba Property Office

