21 Franklin Place Hamilton TAS 7140
For Sale Offers over $550,000
- Property Type House
- Land area approx 2104sqm
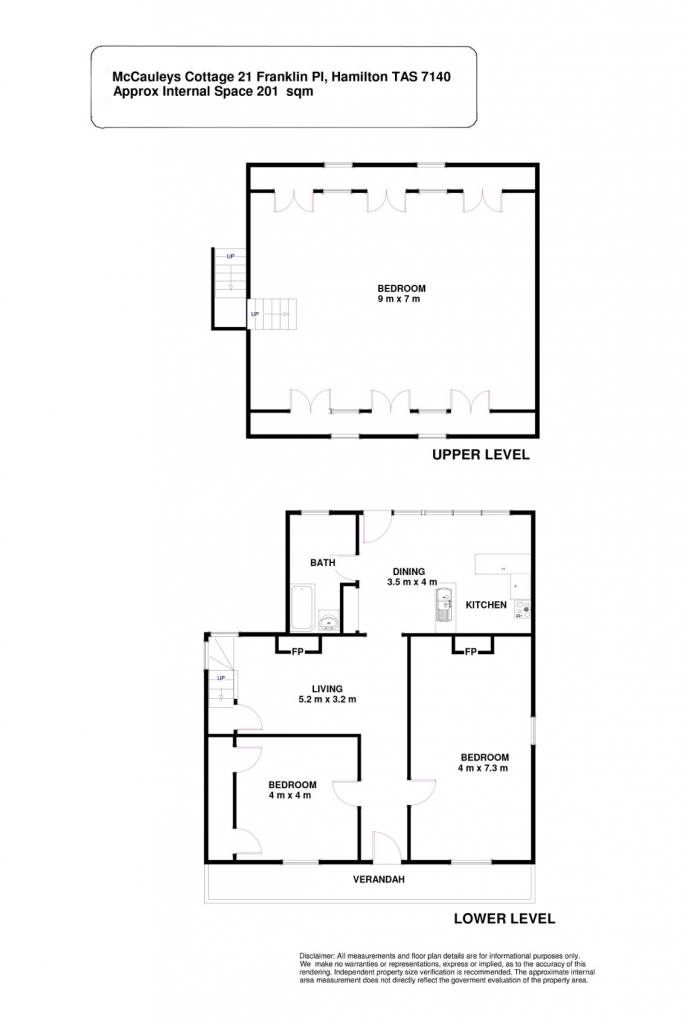
- Floor area approx 201sqm
- Region Tasmania
- Locality Central Highlands
- Toilets 1
- Uncovered Carspaces 4
Charming 1858 sandstone home on a spacious, picturesque block
A stunning piece of history, McCauley's Cottage, built in 1858.
This beautifully preserved sandstone home offers 3 spacious bedrooms, a large kitchen and dining area with original timber flooring, and a generous open verandah that wraps around the front.
Set on over 2000m² across two titles, the property is fully fenced and includes a large, covered fruit orchard, offering both a charming home to move into or a fantastic opportunity for an Airbnb venture.
Roberts Real Estate have obtained all information in this document from sources considered to be reliable; however, we cannot guarantee its accuracy.
Prospective purchasers are advised to carry out their own investigations. All measurements are approximate.
Email a friend
You must be logged in and have a verified email address to use this feature.
Call Agent
-
Paul BelcherRoberts Real Estate Glenorchy

