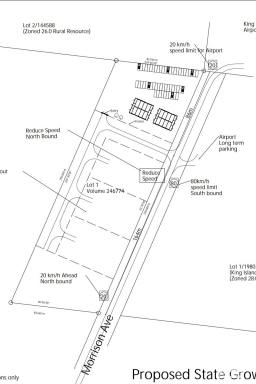
45 Morrison Avenue Loorana TAS 7256
For Sale Expressions of Interest
- Property Type Other (Rural)
- Land area approx 2ha
- Region Tasmania
- Locality King Island
EXCEPTIONAL OPPORTUNITY
2HA with extensive road frontage,
Zoned utilities
DA approved for 28 storage sheds,
55 secured car parks.
Easily subdivided into smaller blocks if required.
Close proximity to King Island airport.
×
×
Email a friend
You must be logged in and have a verified email address to use this feature.
×
×
Call Agent
-
Crighton HortonElders Ulverstone
×
Call Agent
-
Crighton HortonElders Ulverstone

