45 Southorn Street Beech Forest VIC 3237
For Sale $745,000 to $795,000
Under Offer- Property Type Acreage/Semi-rural
- Land area approx 10ac
- Region Barwon South West
- Locality Colac Otway
- Garages 4
Homestead Charm in the Heart of the Otways…
Nestled in the heart of Beech Forest, this charming Australian Homestead offers a rare opportunity to embrace the tranquillity of rural living on 10 acres of picturesque land with established native bush. With its classic gabled roof and striking triangular dormer, the home exudes timeless farmhouse character, complemented by a wide wraparound veranda that invites you to sit back and savour the views.
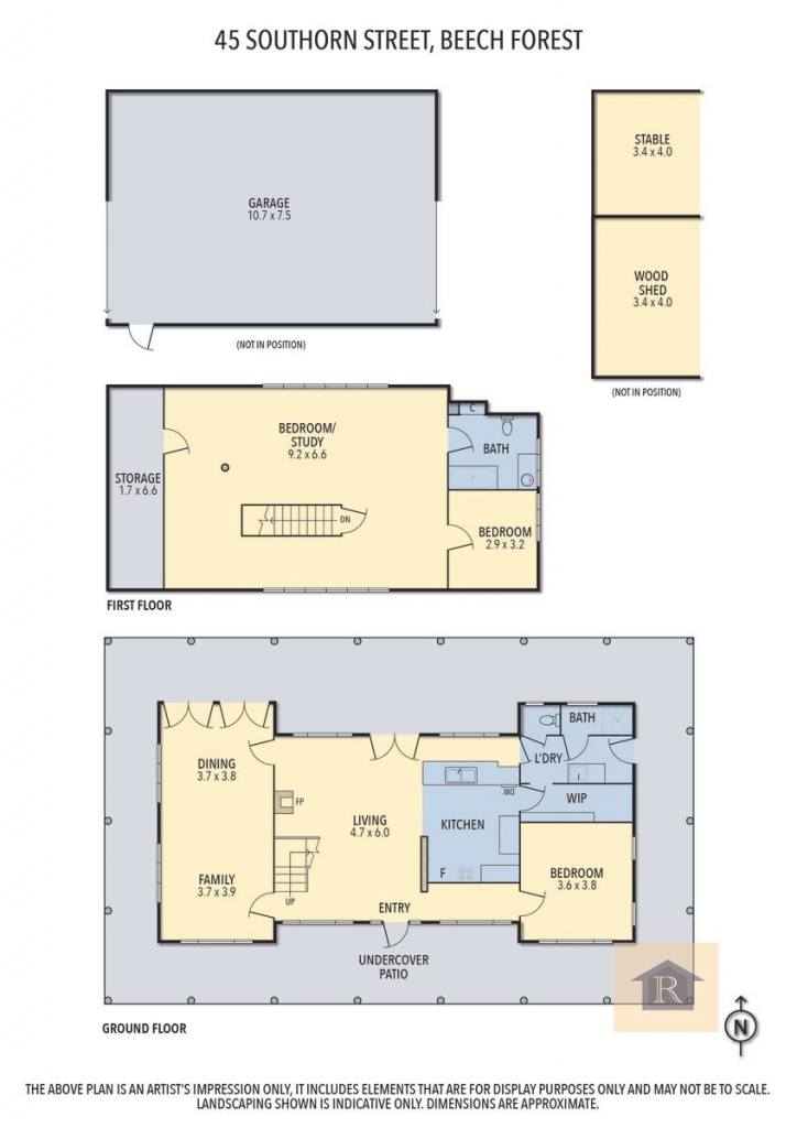
Step inside to discover an open-plan layout that blends comfort and practicality. The kitchen is well-appointed with electric cooking, a 900mm freestanding oven and hot plates, and flows seamlessly into the adjoining dining and living areas. A cosy fire warms the space, while generous windows frame the lush greenery outside, creating a true sense of connection with nature. A family room offers additional space to retreat for quiet moments.
The main bathroom includes a shower over bath, timber vanity, and toilet, with a second shower and toilet conveniently located downstairs. On the ground floor, a private bedroom features exposed internal brickwork, adding rustic charm. Upstairs, you’ll find a second bedroom offering its own comfortable retreat, along with a generous loft area beneath sloped ceilings. The loft is fitted with ceiling fans and large windows that frame breathtaking views over the Otways and provides versatile space that could serve as an additional bedroom, a study, or a relaxed living area, offering endless possibilities to suit your lifestyle.
Beyond the home, the property boasts a large garage, work shed, stables and woodshed, catering to all your practical needs. The north-facing block includes a polytunnel and an established orchard with apple, pear, plum and cherry trees. A temperate rainforest gully with a seasonal spring adds to the natural beauty, while nearby attractions such as the Redwoods, waterfalls, glow worms and the Great Ocean Road promise endless adventures. With the local café close by and the rail trail at the end of the street, this is country living at its finest.
A rare chance to own a serene Otways retreat where timeless homestead charm meets modern country living—your perfect escape awaits.
*All information about the property has been provided to Richardson Real Estate by third parties. Richardson Real Estate has not verified the information and does not warrant its accuracy or completeness. Parties should make and rely on their own enquiries in relation to this property.
Email a friend
You must be logged in and have a verified email address to use this feature.
Call Agent
-
Jake TheodoreRichardson Real Estate
Call Agent
-
Josh MahoneyRichardson Real Estate

