510 Dam Road Saltwater River TAS 7186
For Sale Offers Around $585,000
Under Offer- Property Type Acreage/Semi-rural
- Land area approx 31100sqm
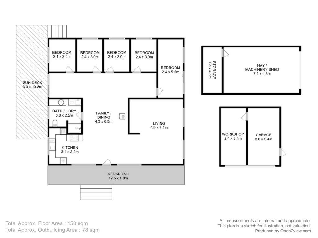
- Floor area approx 158sqm
- Council Rates $2000/year
- Region Tasmania
- Locality Tasman
- Garages 1
- Toilets 1
- Uncovered Carspaces 4
Seven Acres of Serenity, Beautiful Dam & Spacious Five Bedroom Home
Welcome to your peaceful country homestead on approx. 7 acres of fertile land, perfectly blending rural tranquility with lifestyle versatility and natural beauty.
This spacious family home enjoys room for the entire family and offers a rare opportunity for self-sufficient living, hobby farming, or weekend escapes with room to grow and explore.
A place where you can wake up to birdsong, enjoy morning coffees on the deck, and unwind with wide-open skies and serenity all around.
• 5 generous bedrooms & 1 modern bathroom
• Large open-plan lounge, dining & kitchen
• Front and side decks , perfect for family BBQs
• Wood or electric heating for your convenience
• Practical updates for everyday comfort
• Shed with concrete floor & vegetable garden
• Two dams, ideal for stock or watering your gardens
Sheltered Valley life, a few minutes' drive to a choice of beaches and school bus pickup.
Approx. seven acres of fertile land provides you the freedom to run a small orchard, establish a market garden, keep horses or chooks, or simply enjoy space for kids and pets to roam. Kiwifruits and many other crops thrive in this soil, making it perfect for those who love to grow their own.
Whether you're seeking a spacious family haven, a peaceful weekender for extended family, or an investment property with lifestyle potential, this home delivers on space, comfort, and opportunity.
Located approx. 80-90 minutes from Hobart, with easy access to local beaches, bush walking tracks, and the relaxed rural charm, enjoy a lifestyle choice that will be loved for generations.
Local school, shops, cafes, chemist, Medical centre and much more are located at Nubeena approx. 20 minutes drive away.
Kate Storey Realty has obtained all information in this document from sources considered to be reliable, however we cannot guarantee its accuracy. Accordingly, all interested parties should make their own enquiries to verify this information. All measurements are approximate only.
Property Features
- Boat ramps handy
- Bush Retreat
- Privacy
- Rural outlook
- Tranquillity
Email a friend
You must be logged in and have a verified email address to use this feature.
Call Agent
-
Kate StoreyKate Storey Realty
Call Agent
-
Edmond StoreyKate Storey Realty

