53 Rathay Street Victoria Park WA 6100
For Sale offers over $1.850,000
Under Offer- Property Type House
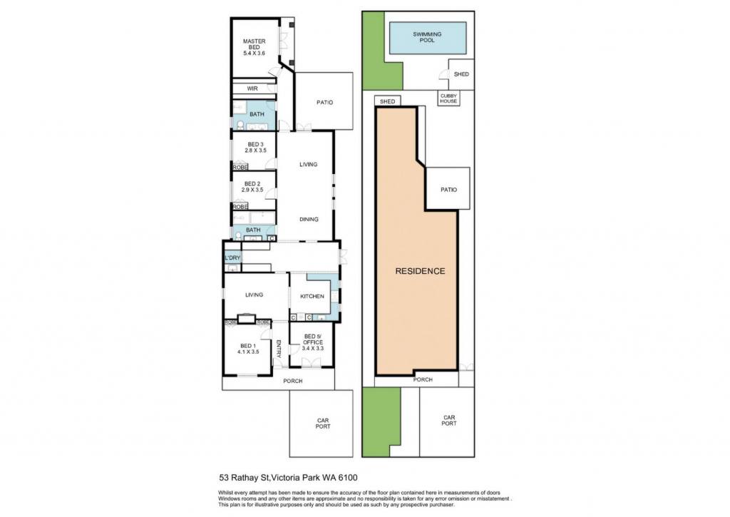
- Land area approx 613.00sqm
- Region Perth
- Locality Victoria Park
- Carports 2
- Ensuite 1
- Toilets 2
- Uncovered Carspaces 1
Character, space and lifestyle this property has it all
Come through the secure electronic gates and be instantly charmed by the timeless 1920s façade and welcoming decked verandah. Step inside to discover where contemporary family living meets the warmth of yesteryear — a seamless blend of old-world character and modern style.
Original wooden floors flow throughout this spacious home, offering five double bedrooms, including one currently used as a home office and a massive master suite privately positioned away from the rest. The living and dining spaces are full of character, featuring beautiful French doors and stained glass highlights, creating an inviting atmosphere filled with natural light and personality.
The updated kitchen and bathrooms bring modern comfort, while outside, the charm continues. Stroll through to the rear limestone courtyard and find a decked entertaining area overlooking a private in-ground pool — perfect for relaxing weekends or entertaining friends.
This home truly has it all — character, space, and lifestyle — all in the heart of vibrant Victoria Park.
✨ Don't wait — properties like this don't stay on the market for long!
Disclaimer:
This information is provided for general information purposes only and is based on information provided by the Seller and may be subject to change. No warranty or representation is made as to its accuracy and interested parties should place no reliance on it and should make their own independent enquiries.
Email a friend
You must be logged in and have a verified email address to use this feature.
Call Agent
-
Lynne CraigieThe Agency Perth

