157 Berry Road Gidgegannup WA 6083
For Sale Mid $1 Mill Range
Under Offer- Property Type Acreage/Semi-rural
- Land area approx 50.10ac
- Region Perth
- Locality Swan
- Carports 15
- Ensuite 1
- Garages 4
- Toilets 4
"To The Manor"
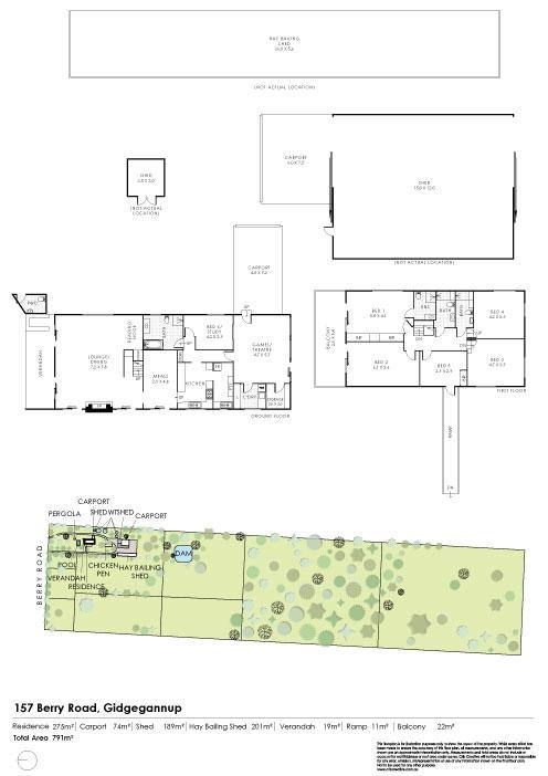
Load up the whole family and escape the hustle and bustle of suburbia today! Located an easy 10 minute drive from the Gidgegannup township, this unique property boasts an expansive residence which would cater for the largest of families, a host of infrastructure and 50 acres of level and useable land. Freshly painted throughout and with new carpets, it is move in ready, but also has the option for new buyers to add their own flair to create something extra-special. With stacks of water courtesy of four water tanks, a good quality bore and a spring-fed dam, this property has all of the fruit and loads of potential!
Expansive 5 bedroom 4 bathroom and 4 WC residence
Huge lounge/dining room and separate games room
Large bedrooms and choice of two master bedrooms
Spacious kitchen with scullery & 900mm range cooker
Feature stone fireplace, split system air cons and ceiling fans
Recently resurfaced b/ground chlorine concrete pool
Four water tanks (250,000L) and good quality bore
Hay/machinery shed & powered shed with carport
49.5 acres with 8 paddocks, fruit trees & spring-fed dam
The residence is set well into the 50 acre block ensuring privacy from neighbours. There are eight fenced paddocks and outcrops of mature trees and an assortment of fruit trees, making it perfect for stock or horses if desired.
Step inside the home, which is split over two floors. An external ramp provides disabled access to the second storey which is home to four of the five bedrooms.
The main living area of the home comprises an expansive open plan lounge and dining room with slate flooring and a gorgeous stone feature fireplace. Split system air conditioners throughout the home keep the entire home comfortable whatever the weather, and ceiling fans in the bedrooms assist with the summer heat. The home has been recently painted in a classic and crisp palette and new carpet and window treatments complete the fresh look.
The kitchen forms the hub of the home and has stacks of cupboards for storage, a 900mm range cooker with dual gas/electric oven, a dishwasher and a handy scullery.
The accommodation in the home would suit the largest of families or even multi-generational living. There are a choice of five bedrooms, a study or 6th bedroom and 4 bathrooms. Four of the bedrooms are huge and the floor plan allows for a choice as to which room would serve as a master suite.
Outside, the grounds are largely a blank canvas but would suit those looking for a sizeable parcel of land. There is a huge hay or machinery shed and a second substantial shed which is powered, has an insulated roof and concrete flooring. A large spring-fed dam, chook enclosure, fruit trees, a recently resurfaced below ground pool and eight paddocks complete the outdoor landscape.
With all of the major infrastructure on offer here, you can just the family in and create your own vision of rural bliss! For more information or to arrange to view please contact.
KERRIE-LEE MARRAPODI - 0415 472 838
Please Note: This property is open by appointment only !
Disclaimer:
This information is provided for general information purposes only and is based on information provided by the Seller and may be subject to change. No warranty or representation is made as to its accuracy and interested parties should place no reliance on it and should make their own independent enquiries.
Property Features
- Air Conditioning
- Balcony
- Broadband
- Built In Wardrobes
- Dishwasher
- Fully Fenced
- In Ground Pool
- Open Fireplace
- Outdoor Entertaining Area
- Secure Parking
- Shed
- Water Tank
- Workshop
Email a friend
You must be logged in and have a verified email address to use this feature.
Call Agent
-
Kerrie-lee MarrapodiThe Agency Perth

