189 Glyn Place Mount Helena WA 6082
Sold $2,790,000
- Property Type House
- Land area approx 4.80ha
- Region Perth
- Locality Mundaring
- Toilets 2
- Garages 4
- Ensuite 1
- Carports 2
Your Very Own "Kings Park" In The Hills & Abundant Water Supply
Set amongst 12 acres of breathtaking parkland style grounds, this stunning hills property blends lush gardens, rolling pastures, manicured landscapes, a boutique vineyard and even an olive grove into one truly remarkable estate. The beautiful residence is perfectly positioned to capture the glorious views, while the abundant water supply ensures the gardens and lawns remain vibrant all year round. Rarely do properties of this calibre be come available, especially so close to Mundaring township and only 40 minutes of Perth.
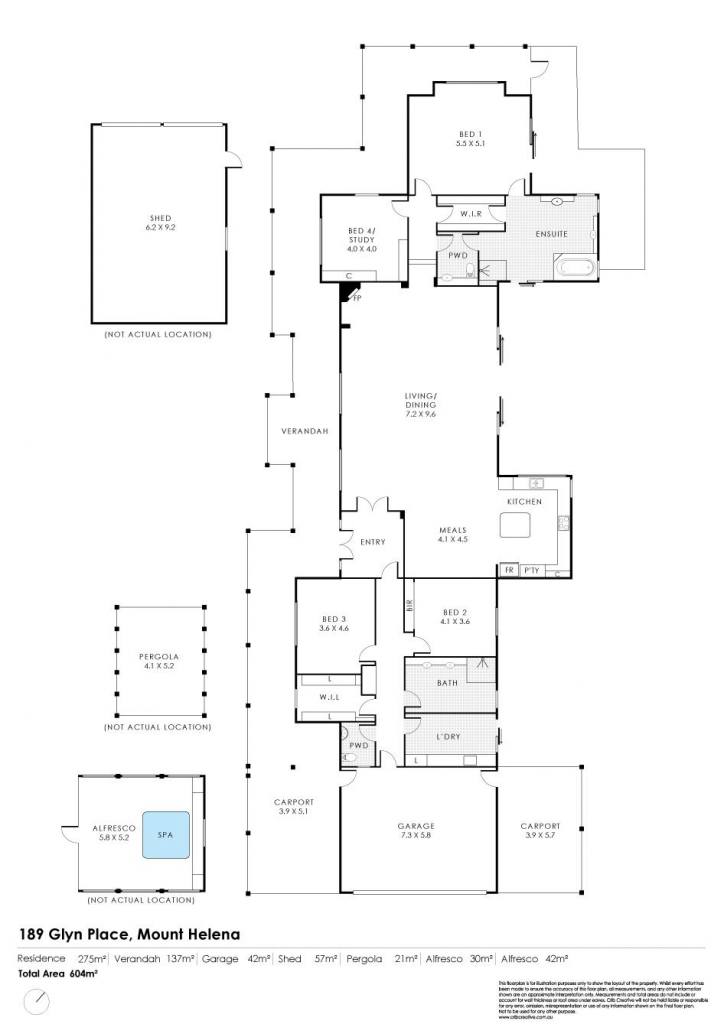
4 bedroom 2 bathroom residence
Expansive open plan living/dining
Tiled floors throughout living areas
Golden Ash timber floors in all bedrooms
Palatial master bedroom bathroom
High ceilings throughout the home
Laufen basins/toilets & Grohe tapware
AGA range gas cooker & electric oven
Separate powered shed or extra garaging
Secure fenced enclosure for pets at rear of house
Sealed driveway from electric gate to house
Private outside spa room enjoying the tranquillity
Stunning "Kings Park" style parkland gardens
Your very own Olive Grove & boutique vineyard
Mains water, bore water, 2 dams & rainwater tank
5.5 kw solar panel system & 3 phase power to property
Fire suppression roof top sprinklers with generator backup
Home set well back to capture the views
Situated on 4.8 Ha ( approx 12 acres)
Potentially subdividable into 2 blocks (STCA)
5 minutes to Mundaring - 40 minutes to Perth
For more information, please call
PATRICK HARPER - 0413 440 107
Disclaimer:
This information is provided for general information purposes only and is based on information provided by the Seller and may be subject to change. No warranty or representation is made as to its accuracy and interested parties should place no reliance on it and should make their own independent enquiries.
Property Features
- Solar Panels
- Water Tank
- Outside Spa
- Inside Spa
- Shed
- Remote Controlled Garage Door
- Outdoor Entertaining Area
- Open Fireplace
- Fully Fenced
- Ducted Cooling
- Dishwasher
- Courtyard
- Built In Wardrobes
- Broadband
Email a friend
You must be logged in and have a verified email address to use this feature.
Call Agent
-
Patrick HarperThe Agency Perth

