24 Castle Range Road Currency Creek SA 5214
For Sale $1,950,000 - $2,150,000
- Property Type Lifestyle
- Land area approx 12.43ha
- Floor area approx 290sqm
- Region Adelaide Hills, Fleurieu and Kangaroo Island
- Locality Alexandrina
- Carports 2
- Garages 5
- Toilets 1
30 Acres of Spectacular Beauty
This breathtaking 30.7-acre (12.43ha) lifestyle property is ideally located just minutes from the beachside towns of Middleton, Port Elliot and Goolwa. Nestled between South Australia's premier wine regions, the property captures sweeping views of the Southern Mt Lofty Ranges and offers an exceptional setting for rural living, hobby farming or potential tourism ventures.
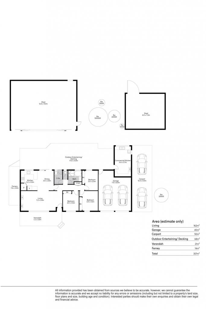
THE HOMESTEAD
A picturesque driveway lined with magnificent gums leads to the renowned Matchett Farm Homestead, positioned within one of the Southern Fleurieu Peninsula's most coveted corridors. The charming original three-bedroom residence blends modern functionality with timeless country appeal, creating warm, relaxed living spaces.
The family room features reverse-cycle air conditioning, a combustion wood fire, abundant natural light and access to a welcoming verandah – the perfect escape for quiet reflection and relaxation.
Three well presented bedrooms include built-in robes and scenic rural views. The bathroom offers a freestanding vanity, separate bath and modern fixtures, while a separate toilet, laundry with direct access to spacious undercover drying area, and a double garage add convenience.
The modern kitchen showcases quality appliances, ample storage and a picture window framing tree-lined paddocks and valley views. The adjoining dining area is family friendly and opens to an impressive 68m2 covered outdoor deck with pull-down blinds, ideal for year-round entertaining while enjoying sweeping rural northern vistas and spectacular sunsets backing the unquestionable beauty of the Southern Mt Lofty Ranges. Completing the home is a separate commercial-grade kitchen currently used for the well-known Matchett Productions and Big Sissy Food labels – perfect for food enthusiasts or a small business venture.
THE LAND
The property comprises three well-fenced paddocks of approximately 10 acres each, two dams and gently undulated land ideal for livestock, horses or hobby farming. Established features include a productive fruit orchard and olive grove, organic vegetable garden and a 25-year-old vineyard producing delicious small-batch Shiraz. There is also scope for a multi-generational estate with options to build an elevated extension to capture some amazing coastal views or an additional dwelling (STCC).
INFRASTRUCTURE & SHEDDING
• 12.4m x 4.0m Carport (attached to garage)
• 12.0m x 9.0m Steel Shed, suitable for farm equipment & storage
• 6.5m x 7.2 m Hay Shed
• Approximately 150,000 L rainwater storage servicing homestead and property.
• Solar panels approx. 3.0KW
Located near stunning surf beaches and just one hour from Adelaide, this exceptional property offers a rare blend of country tranquillity and coastal convenience.
Inspect today and imagine your new life on the magnificent Southern Fleurieu Peninsula.
Note: Approx. 24 Dorper ewes and future lamb stock are not included in the sale price and may be purchased separately by negotiation
Disclaimer: We have in preparing this information used our best endeavours to ensure that the information contained herein is true and accurate but accept no responsibility and disclaim all liability in respect of any errors, omissions, inaccuracies or misstatements that may occur. Prospective purchasers should make their own enquiries to verify the information contained herein. RLA 62833
Property Features
- Air Conditioning
- Built In Wardrobes
- Carpeted
- Deck
- Dishwasher
- Outdoor Entertaining Area
- Remote Controlled Garage Door
- Secure Parking
- Shed
- Solar Panels
- Water Tank
Email a friend
You must be logged in and have a verified email address to use this feature.
Call Agent
-
Michael RobertsonElders Victor Harbor

