5 Oliver Court Kardinya WA 6163
For Sale UNDER OFFER!
Under Offer- Property Type House
- Land area approx 843.00sqm
- Region Perth
- Locality Melville
- Ensuite 1
- Garages 1
- Toilets 2
Ready When You Are!
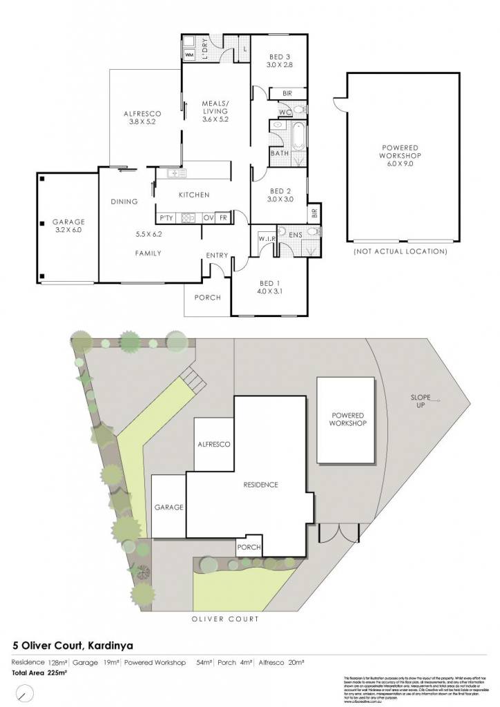
A tranquil cul-de-sac setting just steps away from sprawling Alan Edwards Park is where you will discover this absolute gem of a 3 bedroom 2 bathroom home, nestled on a huge block with lovely views and pleasant protection from the sea breeze.
The wildcard here is gated side access to a massive 6m x 9m (approx.) powered workshop shed – or potential double garage with twin roller doors – that is every tradesperson's dream. The neat, tidy and generous backyard space plays host to lawn, established gardens, fruit trees, a paved sitting courtyard (ideal for a firepit or even a swimming pool) and a fantastic elevated outdoor patio-entertaining area – splendidly overlooking the surrounding suburban treetops.
Inside, a functional modern kitchen has plenty of storage, tiled floors, double sinks, an integrated dishwasher and quality stainless-steel range-hood, five-burner gas-cooktop and oven appliances. It overlooks an open-plan living and meals area with external access, charming brickwork and low-maintenance timber-look flooring.
The same floors grace an adjacent formal lounge and dining area that is generous in its proportions, is kept comfortable by split-system air-conditioning (Mitsubishi unit) and seamlessly connects to the patio – and beyond. A spacious master suite at the front of the house headlines the bedrooms with its ceiling fan, Fujitsu split-system air-conditioner, walk-in wardrobe and intimate ensuite bathroom – shower, toilet, vanity and all.
The second bedroom has a built-in robe, whilst the third bedroom comprises of built-in double robes and a Daikin split-system air-conditioner for climate control.
A practical main family bathroom caters for everybody's personal needs in the form of a shower and separate bathtub.
Stroll to bus stops and the local cricket nets – amidst other community sporting facilities – from this perfect position, where the buzzing South Street precinct and the centre of Fremantle are merely a stone's throw away. The likes of Samson Primary School, Fremantle College, public transport, the Kardinya Park and Westfield Booragoon Shopping Centres, major arterial roads, Murdoch University, the St John of God Murdoch Hospital, Fiona Stanley Hospital, the city, pristine beaches and even our picturesque Swan River are all nearby and a matter of minutes away in their own right, for your convenience.
A young family will love it within these walls – and with foundations for the future already laid, there really is so much to look forward to!
Other features include, but are not limited to:
• Freshly painted
• Front verandah
• Tiled entry foyer
• Easy-care wood-look floors in the bedrooms
• Separate laundry with a double linen press and external access
• Separate 2nd toilet
• Large drying courtyard – with a clothesline
• Security-alarm system
• Security doors and screens
• Jarrah skirting boards
• Instantaneous gas hot-water system
• Reticulated lawns and gardens
• 15-amp power outlets in the workshop
• Additional single lock-up carport – with rear access for a second vehicle to park in tandem
• Huge 843sqm (approx.) block – with dual driveways for ample parking and double side gates leading to the workshop
• City of Melville Rates - $1855.51 p/a approx.
• Water Rates - $1,156.63 p/a approx.
• Built in 1981 (approx.)
Contact Exclusive Listing Agent, Zvon Mikulic, now on 0439 811 023 to arrange your private viewing today!
Disclaimer:
This information is provided for general information purposes only and is based on information provided by the Seller and may be subject to change. No warranty or representation is made as to its accuracy and interested parties should place no reliance on it and should make their own independent enquiries.
Property Features
- Air Conditioning
- Alarm System
- Built In Wardrobes
- Dishwasher
- Shed
- Workshop
Email a friend
You must be logged in and have a verified email address to use this feature.
Call Agent
-
Zvon MikulicThe Agency Perth

