50 George Road Lesmurdie WA 6076
For Sale EOI From $2.25mil
- Property Type House
- Land area approx 2972.00sqm
- Floor area approx 249sqm
- Region Perth
- Locality Kalamunda
- Carports 1
- Garages 2
- Toilets 2
- Uncovered Carspaces 2
“Private, Elevated & Packed with Features”
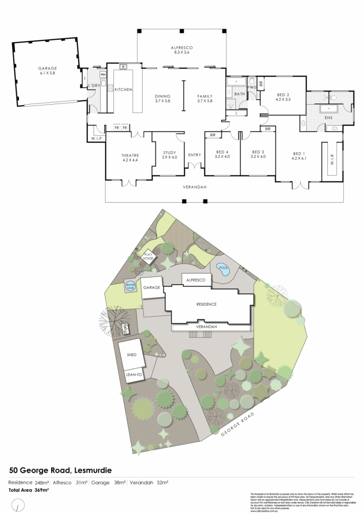
Positioned in one of the most tightly held pockets of Lesmurdie, this exceptional lifestyle property delivers space, privacy and functionality on a grand scale. Built in 2014 by Redink Homes and set on a sprawling 2,972sqm elevated corner lot with dual street access, this is a home designed for families who want it all — without compromise.
Set well back from the road and framed by natural bushland, the residence enjoys a rare sense of seclusion while capturing stunning sunset views and twinkling city lights from the front verandah. Whether it's watching the kids play on the expansive grassed areas or unwinding at the end of the day, this is hills living at its finest.
Stepping inside, you're welcomed by a commanding front entrance complete with a raised bulkhead feature ceiling, setting the tone for the quality that follows, with a dedicated study positioned to the left — ideal for those working from home.
Flowing through the home, you'll immediately appreciate the warmth and durability of the sensational spotted gum hardwood flooring that spans all main living areas and the ducted reverse cycle system for year round comfort.
To the left of the home sits the impressive chef's kitchen, designed to accommodate both everyday living and large-scale entertaining. Featuring a huge breakfast bar, induction cooking, stone benchtops, and an abundance of bench and cupboard space, it overlooks the expansive dining area and adjacent is the family room. This central living zone seamlessly connects to the outdoors, opening via double sliding doors to the large alfresco entertaining area — perfectly positioned to overlook the below-ground pool.
A separate, cozy theatre room with overhead projection provides the ideal retreat for movie nights, while the accommodation has been thoughtfully designed for both comfort and privacy.
The massive primary suite is a true standout, complete with a large walk-in robe and direct access to the front verandah, allowing you to take in the stunning outlook at any time of day. The hotel-style ensuite is equally impressive, featuring a bath positioned to capture the view — creating a luxurious space to relax and unwind.
All minor bedrooms are generously proportioned doubles with built-in robes and are cleverly positioned away from the main living areas, making them perfect for growing families.
Throughout the home, quality finishes are evident with tasteful pendant lighting, LED lighting, and premium window treatments enhancing both style and functionality plus an alarm system for added security.
Outside, the lifestyle continues.
The property is fully equipped with outstanding infrastructure including a powered 6m x 9m workshop and an adjoining carport/lean-to, ideal for securely housing a full-height off-road caravan, boat or additional vehicles. The dual street access further enhances usability and flexibility
For those seeking future potential, the block offers ample space for a granny flat (STCA), making it ideal for extended family living or additional income opportunities.
Energy efficiency is well catered for with a 15-panel solar system (approx. 3.5kW inverter), while additional features include a water tank, NBN fibre to the premises, and established fruit trees including lemon, lime, apple, orange, mandarin and olive — adding to the charm and self-sufficiency of the property and is also fully reticulated off the mains.
A kids' playhouse at the rear completes the picture for family living, ensuring there is something here for everyone.
Surrounded by natural bushland and located in one of Perth's most sought-after hill's locations, this is a rare opportunity to secure a fully established lifestyle property where all the money has been spent, and hard work done.
Expressions of Interest Close 30th March 2026 at 6.30pm (unless sold prior).
Contact Rob Vellacott today to register your interest!
Disclaimer:
This information is provided for general information purposes only and is based on information provided by the Seller and may be subject to change. No warranty or representation is made as to its accuracy and interested parties should place no reliance on it and should make their own independent enquiries.
Property Features
- Alarm System
- Built In Wardrobes
- Dishwasher
- Ducted Cooling
- Ducted Heating
- Fully Fenced
- In Ground Pool
- Outdoor Entertaining Area
- Remote Controlled Garage Door
- Secure Parking
- Shed
- Solar Panels
- Workshop
Email a friend
You must be logged in and have a verified email address to use this feature.
Call Agent
-
Rob VellacottThe Agency Perth

